Request
Fix an appointment
Farmhouse/Rustico - Radicondoli
Property with 70 hectares of land and panoramic views
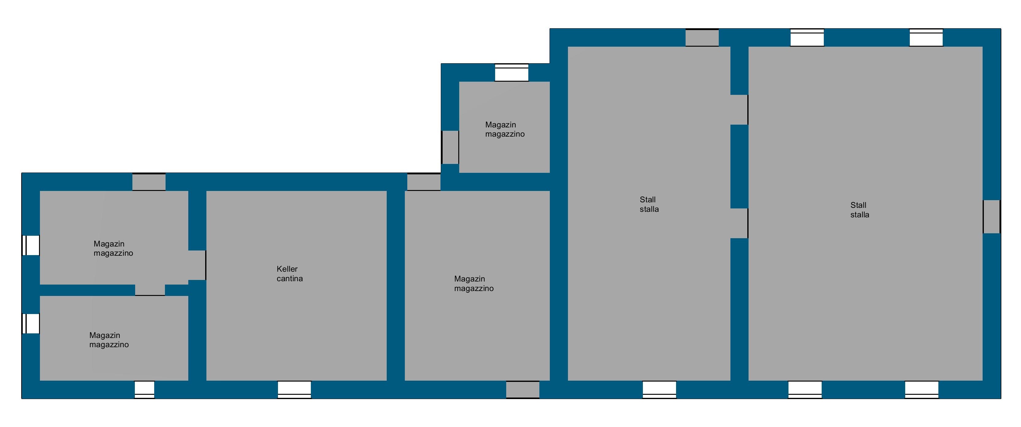
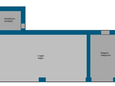
R07013RARU - An exceptionally large rustico property is for sale, consisting of two former farmhouses and several agricultural outbuildings with a total area of around 1,500 m². The property covers approximately 70 hectares of contiguous land and offers a wide range of possibilities for agricultural use, tourism projects, or a large private residence.
The property is divided into approximately 50 hectares of farmland, an olive grove of around 200 trees, and approximately 20 hectares of forest. Within the estate, there are exclusively private access and connecting roads, which allow for independent development of the individual areas. The location is characterized by impressive views with spectacular panoramic vistas and unobstructed views of Belforte and the surrounding countryside.
All buildings are in need of renovation. One of the farmhouses has stable exterior walls and a well-preserved roof, but still requires complete renovation of the interior. The second farmhouse is badly damaged and needs to be demolished, opening up new structural design possibilities. The existing outbuildings offer additional development potential.
Electricity and water connections are already in place, but there is no gas connection. An installed photovoltaic system with a capacity of 20 kW also contributes to the energy supply, making the property interesting from a sustainability perspective.
This property is aimed at buyers who are looking for a large estate with impressive views and extensive grounds and who are prepared to carry out a renovation or development project according to their own ideas.
| Farmhouse/Rustico | 2.800.000 € | 1.500 m² |
| Siena | Radicondoli | 2 floors |
| Bedrooms: 6 | Bathrooms: 1 | Kitchen: Eat-In Kitchen |
| Balcony: No | Terrace: No | Garden: Yes |
| Elevator: No | Cellar: 1 | Garage: parking spots |
| Condition: To renovate | Furniture: not furnished | Heating: independent |
| Energy Certificate: G | Availability: immediately |
| Farmhouse/Rustico | 2.800.000 € |
| Siena | Radicondoli |
| 1.500 m² | 2 floors |
| Bedrooms: 6 | Bathrooms: 1 |
| Balcony: No | Terrace: No |
| Garden: Yes | Kitchen: Eat-In Kitchen |
| Cellar: 1 | Garage: parking spots |
| Condition: To renovate | Furniture: not furnished |
| Elevator: No | Heating: independent |
| Energy Certificate: G | |
| Availability: immediately |
Rimmo Real Estate
Via Innsbruck 29 - 39100 Bolzano
tel +39 0471 982 844 - info@rimmo.it - VAT ID 02980260216
Tuscany
tel +39 333 993 5635 - tuscany@rimmo.it - VAT ID 03240880215