Request
Fix an appointment
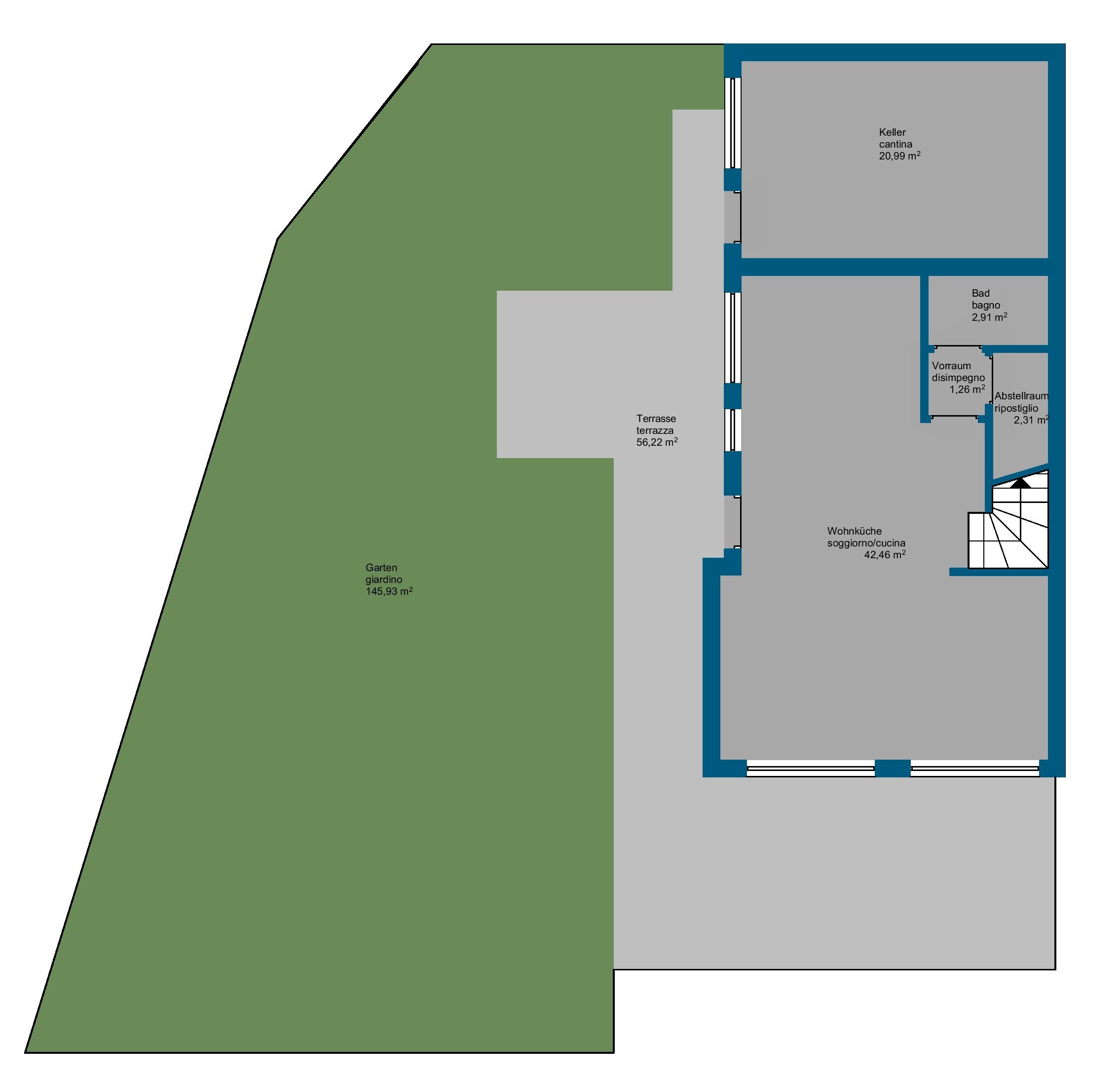
Semidetached House - Altopiano della Vigolana
Modern semi-detached house in a quiet location in Bosentino
In a quiet and sunny location in the charming village of Bosentino, only about 20 minutes from Lake Caldonazzo, Folgaria, and Trento, a detached villa and two semi-detached houses are currently being built—a new construction project that combines modern living with nature, comfort, and quality.
The properties impress with their high-quality construction, spacious room design, and well-thought-out architecture, which creates a bright and harmonious living environment. The location offers a perfect combination of tranquility, green views, and good accessibility: shops, schools, and public transportation are nearby, while at the same time you live in the midst of peaceful surroundings.
Each unit has large terraces and garden areas that invite you to spend cozy hours outdoors and naturally extend the living space. The houses are ideal – whether as a primary residence for families or couples who appreciate a quiet environment, or as a vacation home in one of the most beautiful regions of Trentino.
A special bonus: buyers have the opportunity to actively participate in the interior design and room layout to create their home according to their own ideas. Double garages or covered parking spaces are also available.
These new buildings combine modern quality of life, fair prices, and a natural location to create a harmonious overall picture—a place where well-being, functionality, and design complement each other perfectly.
| Semidetached House | 480.000 € | 136 m² | 
| other | Altopiano della Vigolana | 3 floors | 
| Bedrooms: 3 | Bathrooms: 3 | Kitchen: Kitchen nook | 
| Balcony: Yes | Terrace: Yes | Garden: Yes | 
| Elevator: No | Cellar: 1 | Garage: double garage included | 
| Condition: New construction | Furniture: not furnished | Heating: indipendent | 
| Energy Certificate: A | Availability: within 12 months | 
| Semidetached House | 480.000 € | 
| other | Altopiano della Vigolana | 
| 136 m² | 3 floors | 
| Bedrooms: 3 | Bathrooms: 3 | 
| Balcony: Yes | Terrace: Yes | 
| Garden: Yes | Kitchen: Kitchen nook | 
| Cellar: 1 | Garage: double garage included | 
| Condition: New construction | Furniture: not furnished | 
| Elevator: No | Heating: indipendent | 
| Energy Certificate: A | |
| Availability: within 12 months | 
Rimmo Real Estate
Via Innsbruck 29 - 39100 Bolzano
tel +39 0471 982 844 - info@rimmo.it - VAT ID 02980260216
    Tuscany
    
    tel +39 333 993 5635 -   tuscany@rimmo.it - VAT ID  03240880215
    
  
 
                
             
                             
                             
                                