Request
Fix an appointment
Detached House - Laives
















Large detached house with potential
This detached house in a quiet, secluded location offers a high degree of privacy and scope for design. It is situated on a spacious private plot of around 900 m², which offers ample space for a garden, seating areas, or additional uses. Thanks to its solid structure and well-thought-out layout over four floors, the property is suitable both as a large single-family home and—with appropriate conversion—as a two- or three-family home.
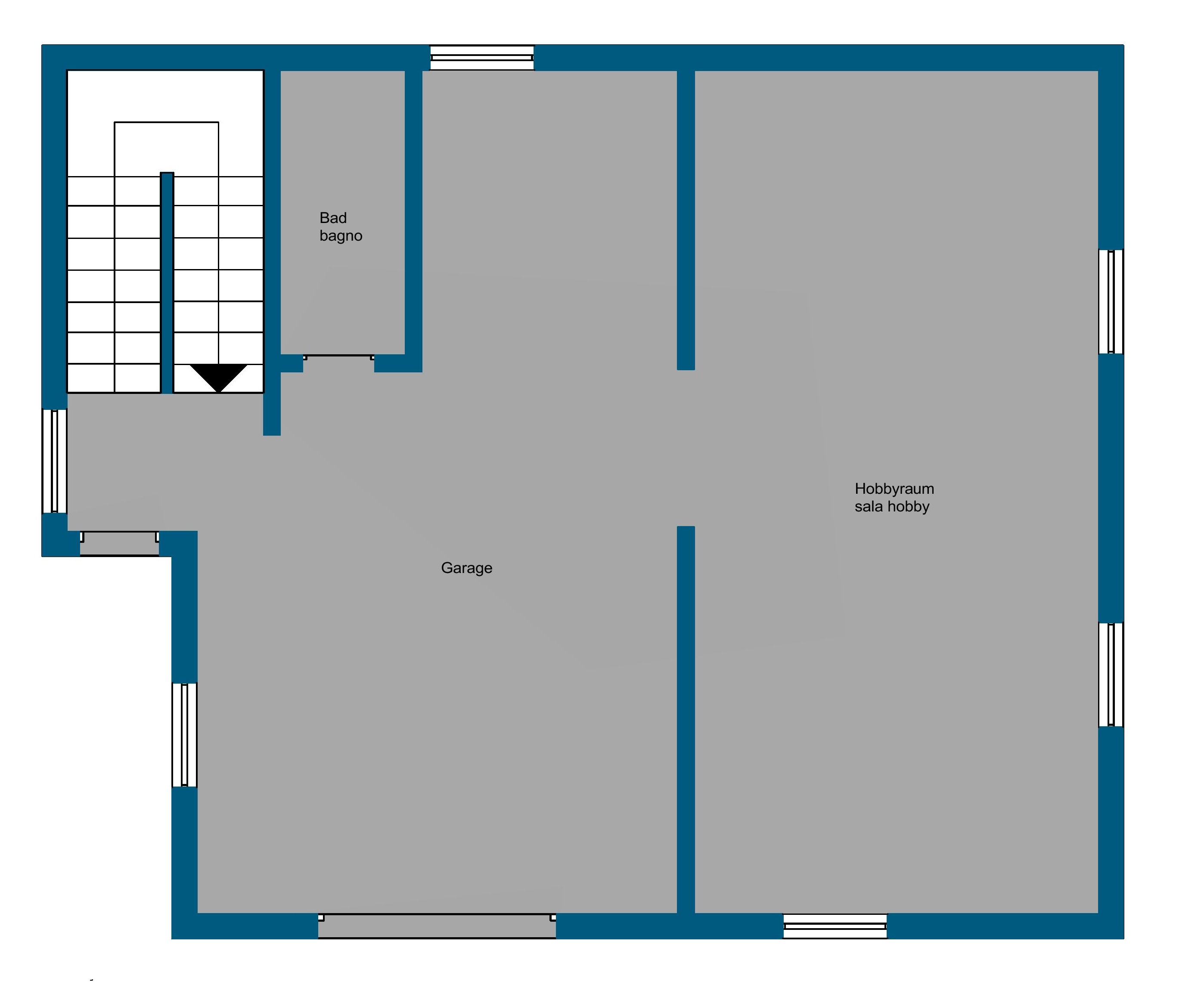
The basement has two spacious cellar rooms, which are ideal for storage, a small workshop, or as a wine cellar. The ground floor houses a garage, a bathroom, and a hobby room that can be used flexibly—for example, as a fitness area, studio, or additional living space.
The first floor forms the central living area and comprises a spacious 3-room apartment, which conveys a pleasant living atmosphere thanks to its well-thought-out room layout and brightness. The attic rounds off the space and can be used as a loft or extension reserve – perfect for guest rooms, an office, or a studio with a view of the countryside.
Another plus point: the autonomous gas heating system has recently been renewed, ensuring not only energy efficiency but also long-term operational reliability.
This house is ideal for families or investors looking for a versatile property with great potential – nestled in a quiet environment yet easily accessible.
Detached House | 699.000 € | 275 m² |
Oltradige/Bassa Atesina | Laives | 4 floors |
Bedrooms: 2 | Bathrooms: 2 | Kitchen: Eat-In Kitchen |
Balcony: Yes | Terrace: Yes | Garden: Yes |
Elevator: No | Cellar: 2 | Garage: garage + parking spots |
Condition: Mediocre | Furniture: partially furnished | Heating: indipendent |
Energy Certificate: G | Availability: immediately |
Detached House | 699.000 € |
Oltradige/Bassa Atesina | Laives |
275 m² | 4 floors |
Bedrooms: 2 | Bathrooms: 2 |
Balcony: Yes | Terrace: Yes |
Garden: Yes | Kitchen: Eat-In Kitchen |
Cellar: 2 | Garage: garage + parking spots |
Condition: Mediocre | Furniture: partially furnished |
Elevator: No | Heating: indipendent |
Energy Certificate: G | Reserved for locals: no |
Availability: immediately |
Rimmo Real Estate
Via Innsbruck 29 - 39100 Bolzano
tel +39 0471 982 844 - info@rimmo.it - VAT ID 02980260216
Tuscany
tel +39 333 993 5635 - tuscany@rimmo.it - VAT ID 03240880215