Request
Fix an appointment
Two Room Apartment - Badia
Well-maintained attic apartment in a perfect location
This charming attic apartment in the heart of the Dolomites offers a unique retreat for anyone who loves mountain life, nature, and sporting activities. Its central location in Pedratsches allows you to enjoy the beauty of the region all year round—from the blooming alpine meadows in summer to the snow-covered slopes in winter. The ski slopes of the famous Sellaronda are just a few minutes away, making this property particularly attractive for winter sports enthusiasts.
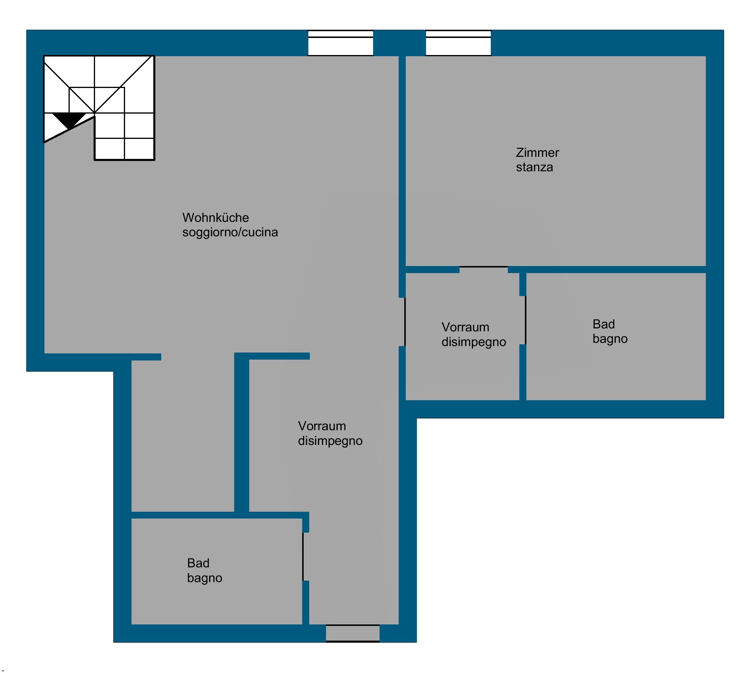
The apartment itself impresses with its traditional alpine style, characterized by warm wooden elements that create a cozy atmosphere. Upon entering, an inviting entrance area leads to the various rooms: a small bathroom, a practical mini-kitchen, and a cozy living room that invites you to linger after an active day in the mountains. The bedroom has its own bathroom and offers additional comfort. An internal staircase leads to the attic, which can be used in a variety of ways – as an additional sleeping area, a retreat or storage space. A garage is included in the purchase price and rounds off the offer perfectly.
The attic apartment is ideal as a vacation property, whether for relaxing weekends, longer stays or as an investment in one of the most sought-after regions of South Tyrol.
| Two Room Apartment | 595.000 € | 100 m² |
| Val Pusteria | Badia | 3rd floor (attico) |
| Bedrooms: 1 | Bathrooms: 2 | Kitchen: Kitchen nook |
| Balcony: No | Terrace: No | Garden: No |
| Elevator: No | Cellar: / | Garage: garage included |
| Condition: Good | Furniture: furnished | Heating: central |
| Energy Certificate: F | Availability: immediately |
| Two Room Apartment | 595.000 € |
| Val Pusteria | Badia |
| 100 m² | 3rd floor (attico) |
| Bedrooms: 1 | Bathrooms: 2 |
| Balcony: No | Terrace: No |
| Garden: No | Kitchen: Kitchen nook |
| Cellar: / | Garage: garage included |
| Condition: Good | Furniture: furnished |
| Elevator: No | Heating: central |
| Energy Certificate: F | Reserved for locals: no |
| Availability: immediately |
Rimmo Real Estate
Via Innsbruck 29 - 39100 Bolzano
tel +39 0471 982 844 - info@rimmo.it - VAT ID 02980260216
Tuscany
tel +39 333 993 5635 - tuscany@rimmo.it - VAT ID 03240880215