Request
Fix an appointment
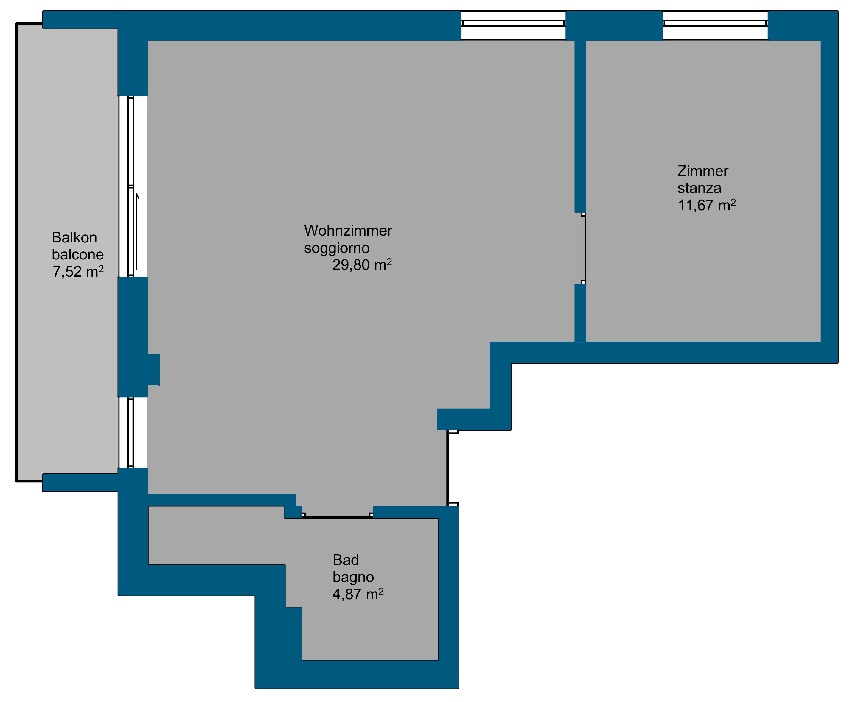
Two Room Apartment - Bolzano-Gries/San Quirino
Unique attic apartment in a prime location!
Are you looking for a new home with something special? Do you value high-end amenities, an excellent location, lots of sun, and unlimited privacy? Then you can't miss out on this gem, as it offers you the opportunity to purchase an apartment that combines all these features!
This two-room apartment underwent a high-quality renovation a few years ago, and no expense or effort was spared in furnishing it in a modern style. Located on the fifth and top floor of a building on Strada Rio Molino in Gries and facing southwest, the apartment offers a fantastic, unobstructed view of the vineyards of the Gries meadows and the Adige Valley. Privacy is a top priority here, as both the balcony and the apartment itself are well away from the street and not visible from the outside. New furniture and a cellar are included in the price. The very spacious garage can be purchased for an additional €50,000.
Not satisfied with a standard property? Then take advantage of this opportunity!
| Two Room Apartment | 355.000 € | 57 m² |
| Bolzano | Bolzano-Gries/San Quirino | 5th floor (attic floor) |
| Bedrooms: 1 | Bathrooms: 1 | Kitchen: Kitchen nook |
| Balcony: Yes | Terrace: No | Garden: No |
| Elevator: Yes | Cellar: 1 | Garage: garage extra |
| Condition: Renovated | Furniture: furnished | Heating: central |
| Energy Certificate: G | Availability: immediately |
| Two Room Apartment | 355.000 € |
| Bolzano | Bolzano-Gries/San Quirino |
| 57 m² | 5th floor (attic floor) |
| Bedrooms: 1 | Bathrooms: 1 |
| Balcony: Yes | Terrace: No |
| Garden: No | Kitchen: Kitchen nook |
| Cellar: 1 | Garage: garage extra |
| Condition: Renovated | Furniture: furnished |
| Elevator: Yes | Heating: central |
| Energy Certificate: G | Reserved for locals: no |
| Availability: immediately |
Rimmo Real Estate
Via Innsbruck 29 - 39100 Bolzano
tel +39 0471 982 844 - info@rimmo.it - VAT ID 02980260216
Tuscany
tel +39 333 993 5635 - tuscany@rimmo.it - VAT ID 03240880215