Logo Real Estate

Request

Fix an appointment

Three Room Apartment - Postal

Well-maintained 3-room apartment with two terraces

This well-maintained 3-room apartment extends over the first and second floors, with the second floor also being the top floor of the building. This gives the property a particularly quiet living atmosphere as well as plenty of light and privacy.
The apartment was completely renovated to a high standard in 2017 and is now in a modern, inviting condition – ideal for those who want to move in without further renovation work.
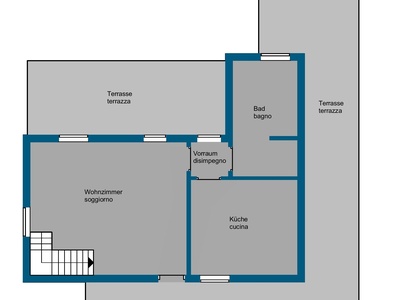
The first floor, which forms the central living area, features a bright living room and modern kitchen. On the same level are two spacious terraces, which harmoniously extend the living space to the outside. They are perfect for al fresco dining, cozy lounge moments, or simply enjoying the sun.
An internal staircase leads to the second and top floor, which forms the sleeping area. Here there are two spacious bedrooms and a bathroom – an ideal layout for couples, families, or people who need extra space for guests or a home office.
A garage can be purchased for an additional €25,000, comfortably rounding off this attractive offer.
The apartment impresses with its well-maintained appearance, its well-thought-out room layout, and the two large outdoor areas, which are rarely found in this form.

Three Room Apartment 395.000 €
Burggraviato/Val d’Adige Postal
116 m² 1st + 2nd floor (attico)
Bedrooms: 2 Bathrooms: 2
Balcony: No Terrace: Yes
Garden: No Kitchen: Eat-In Kitchen
Cellar: / Garage: garage extra
Condition: Good Furniture: partially furnished
Elevator: No Heating: indipendent
Energy Certificate: G Reserved for locals: no
Availability: to stipulate

Rimmo Real Estate

Via Innsbruck 29 - 39100 Bolzano

tel +39 0471 982 844 - info@rimmo.it - VAT ID 02980260216

Tuscany
tel +39 333 993 5635 - tuscany@rimmo.it - VAT ID 03240880215

Impressum - Privacy

Facebook Instagram YouTube