Anfrage
Besichtigungstermin
4 Zimmer Wohnung - Florenz
Historische Wohnung im Herzen von Florenz
R06397FI4Z - Diese Wohnung im Hochparterre eines eindrucksvollen Gebäudes aus dem 13. Jahrhundert bietet eine seltene Gelegenheit, in einem der faszinierendsten Viertel von Florenz zu wohnen.
Die Immobilie liegt im traditionsreichen Viertel San Niccolò, einem der gefragtesten und lebendigsten Stadtteile von Florenz, nur wenige Gehminuten vom historischen Zentrum und der weltberühmten Ponte Vecchio entfernt.
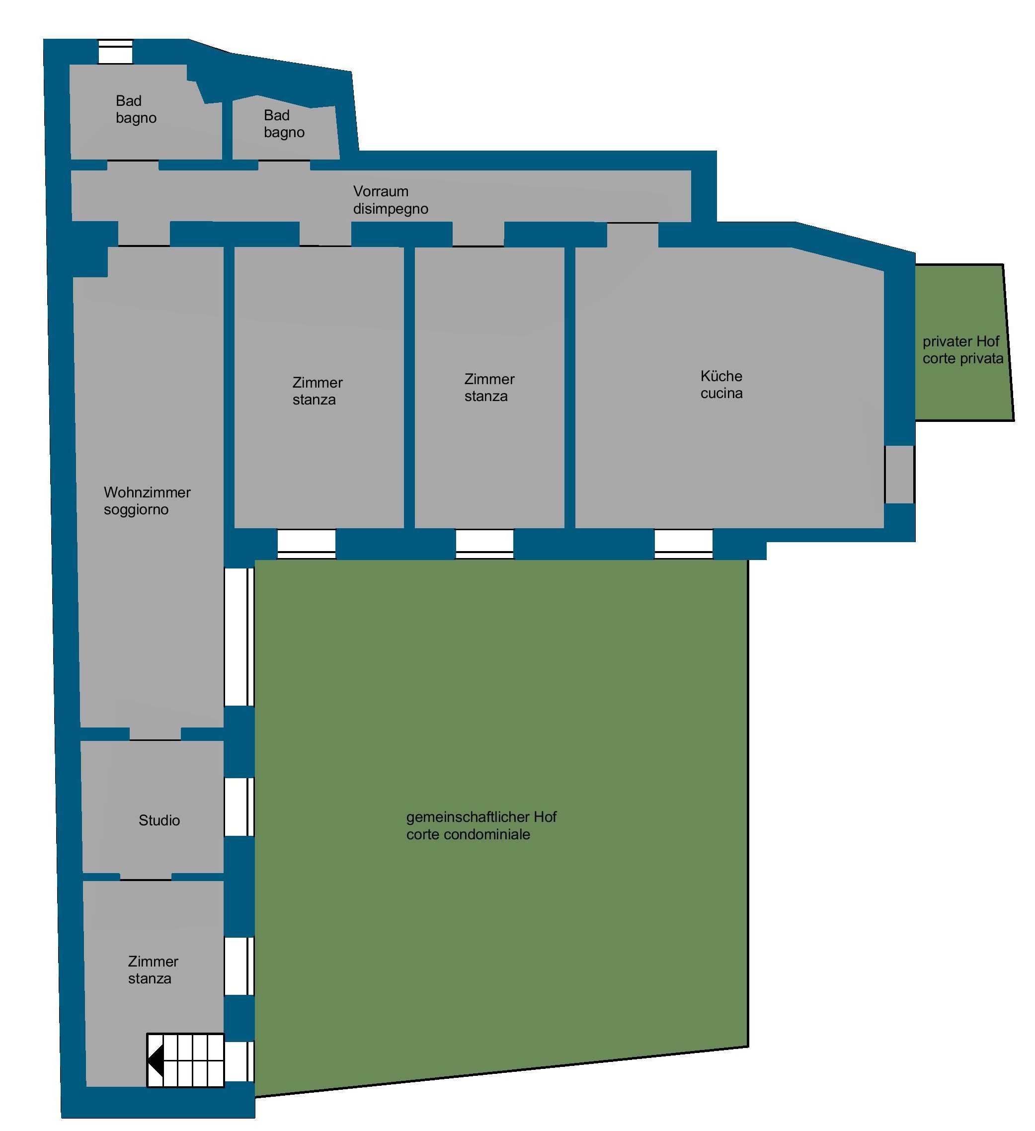
Sämtliche Fenster der Wohnung öffnen sich zum Innenhof der Anlage und sorgen für eine angenehme, geschützte Atmosphäre. Zusätzlich steht Ihnen ein kleiner, privater Innenhof zur Verfügung – ein exklusiver Außenbereich mitten in der Stadt, ideal für entspannte Stunden oder grüne Akzente.
Ob als stilvolle Hauptwohnung oder charmantes Anlageobjekt zur Vermietung – diese Immobilie ist eine Rarität auf dem florentinischen Markt. Die außergewöhnliche Lage, die historische Substanz und das ruhige Wohngefühl machen sie zu einer Investition mit bleibendem Wert.
Wer nach einem authentischen Stück Florenz sucht, das Geschichte erzählt und zugleich modernes Stadtleben ermöglicht, wird hier fündig.
| 4 Zimmer Wohnung | 680.000 € | 170 m² |
| Florenz | Florenz | 1. Stock |
| Anzahl Schlafzimmer: 3 | Anzahl Bäder: 2 | Küche: Separate Küche |
| Balkon: Nein | Terrasse: Nein | Garten: Ja |
| Aufzug: Nein | Keller: / | Garage/Stellplatz: nein |
| Zustand: Gepflegt | Einrichtung: teilweise möbliert | Heizung: autonom |
| Energ. Zertifizierung: G | Verfügbarkeit: sofort |
| 4 Zimmer Wohnung | 680.000 € |
| Florenz | Florenz |
| 170 m² | 1. Stock |
| Anzahl Schlafzimmer: 3 | Anzahl Bäder: 2 |
| Balkon: Nein | Terrasse: Nein |
| Garten: Ja | Küche: Separate Küche |
| Keller: / | Garage/Stellplatz: nein |
| Zustand: Gepflegt | Einrichtung: teilweise möbliert |
| Aufzug: Nein | Heizung: autonom |
| Energ. Zertifizierung: G | |
| Verfügbarkeit: sofort |
Rimmo Real Estate
Innsbrucker Straße 29 - 39100 Bozen
tel +39 0471 982 844 - info@rimmo.it - MwSt. Nr. 02980260216
Toskana
tel +39 333 993 5635 - tuscany@rimmo.it - MwSt. Nr. 03240880215