Anfrage
Besichtigungstermin
4 Zimmer Wohnung - Figline e Incisa Valdarno
Moderne 4-Zimmer Wohnung in zentraler Lage
R07037FI4Z - Im Herzen von Figline stehen drei exklusive Wohnungen zum Verkauf, eingebettet in einen historischen Gebäudekomplex aus dem Jahr 1970, der im Jahr 2012 umfassend und hochwertig renoviert wurde. Die zentrale Lage ermöglicht es, alle wichtigen Dienstleistungen, Geschäfte und Verkehrsanbindungen bequem zu Fuß zu erreichen.
Die Wohnungen werden vollständig schlüsselfertig übergeben und zeichnen sich durch eine sehr hochwertige technische und bauliche Ausstattung aus. Fußbodenheizung und Fußbodenkühlung sorgen ganzjährig für ein angenehmes Raumklima, unterstützt durch eine integrierte Entfeuchtungsanlage. Die Versorgung mit Wärme und Kühlung erfolgt über eine moderne geothermische Anlage der Wohnanlage, die Effizienz und Nachhaltigkeit vereint.
Zur weiteren Ausstattung gehören eine Zentralstaubsauganlage sowie die Vorbereitung für Hausautomationssysteme, die eine individuelle und zeitgemäße Steuerung der Wohnräume ermöglichen. Ein Hausmeister- und Gärtnerservice kümmert sich um die laufende Betreuung und Pflege der gemeinschaftlichen Bereiche und erhöht den Wohnkomfort zusätzlich. Für zusätzlichen Komfort können überdachte Stellplätze bei Bedarf separat erworben werden.
Insgesamt handelt es sich um moderne, komfortable Wohnungen in zentraler Lage, die hochwertige Technik, nachhaltige Energieversorgung und urbanes Wohnen in idealer Weise verbinden.
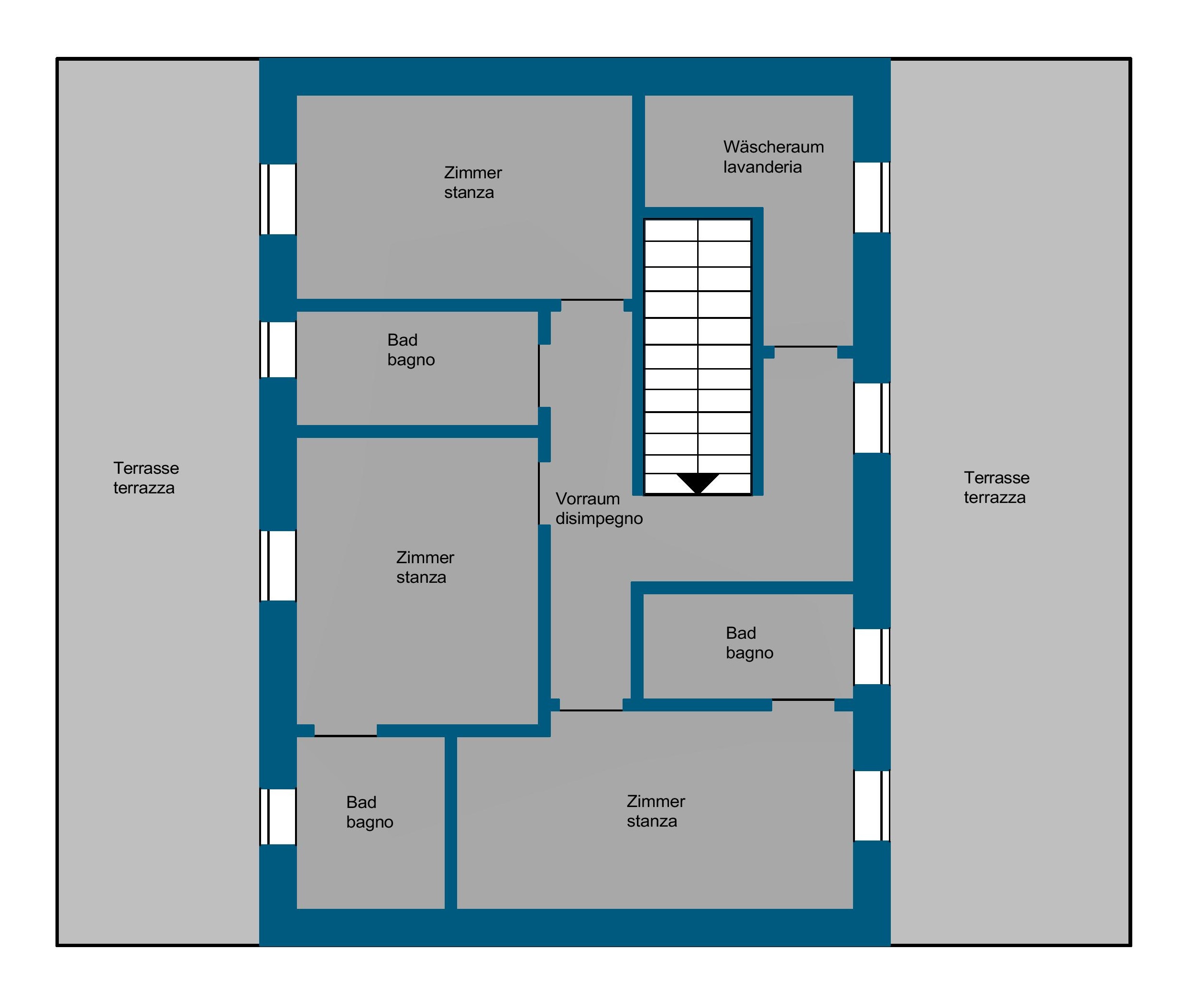
| 4 Zimmer Wohnung | 690.000 € | 221 m² |
| Florenz | Figline e Incisa Valdarno | 3. + 4. Stock |
| Anzahl Schlafzimmer: 3 | Anzahl Bäder: 4 | Küche: Separate Küche |
| Balkon: Ja | Terrasse: Ja | Garten: Nein |
| Aufzug: Ja | Keller: / | Garage/Stellplatz: nein |
| Zustand: Neubau | Einrichtung: nicht möbliert | Heizung: autonom |
| Energ. Zertifizierung: A | Verfügbarkeit: sofort |
| 4 Zimmer Wohnung | 690.000 € |
| Florenz | Figline e Incisa Valdarno |
| 221 m² | 3. + 4. Stock |
| Anzahl Schlafzimmer: 3 | Anzahl Bäder: 4 |
| Balkon: Ja | Terrasse: Ja |
| Garten: Nein | Küche: Separate Küche |
| Keller: / | Garage/Stellplatz: nein |
| Zustand: Neubau | Einrichtung: nicht möbliert |
| Aufzug: Ja | Heizung: autonom |
| Energ. Zertifizierung: A | |
| Verfügbarkeit: sofort |
Rimmo Real Estate
Innsbrucker Straße 29 - 39100 Bozen
tel +39 0471 982 844 - info@rimmo.it - MwSt. Nr. 02980260216
Toskana
tel +39 333 993 5635 - tuscany@rimmo.it - MwSt. Nr. 03240880215