Anfrage
Besichtigungstermin
3 Zimmer Wohnung - Empoli
Exklusives Penthouse mit Dachterrasse in zentraler Lage
Dieses außergewöhnliche Penthouse bietet die seltene Gelegenheit, ein Zuhause ganz nach den eigenen Vorstellungen zu gestalten. Die Immobilie befindet sich derzeit in Renovierung und wird im Februar 2026 fertiggestellt – modern, energieeffizient und mit hochwertigster technischer Ausstattung.
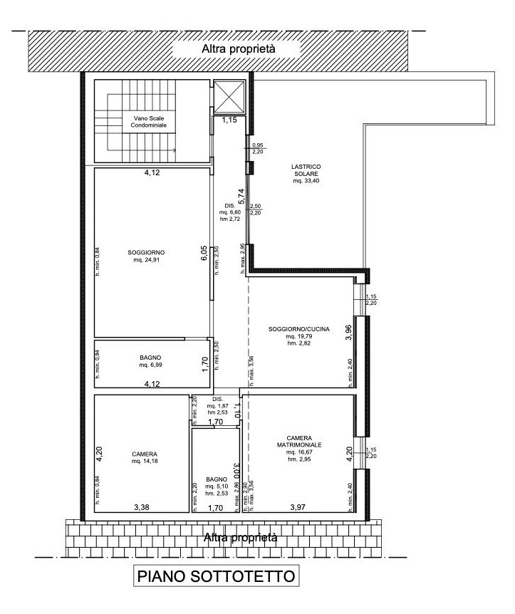
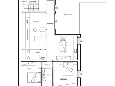
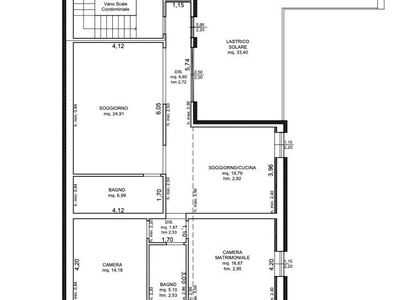
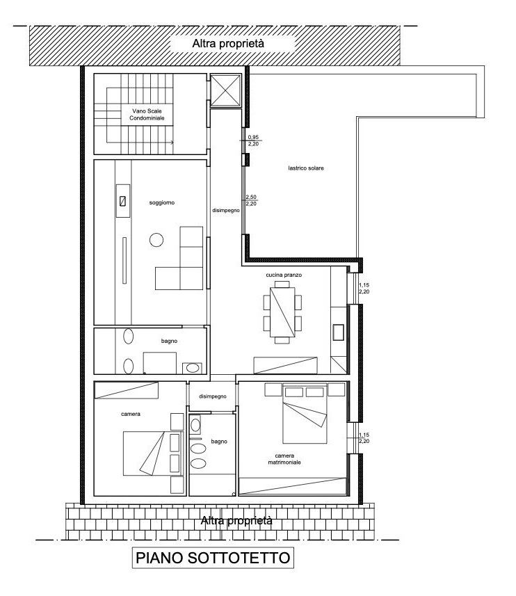
Das Penthouse überzeugt durch eine großzügige Aufteilung mit einer Verkaufsfläche von 113 m² und einer Nettofläche von 96 m². Die Räumlichkeiten umfassen ein helles Wohnzimmer, eine Küche, ein Doppelzimmer, ein weiteres Schlafzimmer, zwei moderne Badezimmer sowie einen Flur. Eine 33 m² große Dachterrasse rundet das Angebot perfekt ab – ideal, um über den Dächern der Stadt zu entspannen und den Blick zu genießen.
Das neu errichtete Holzdach mit Holzfaserdämmung (16+4 cm) sowie der belüftete Aufbau garantieren höchsten Wohnkomfort und optimale Energieeffizienz. Ergänzt wird dies durch eine Fußbodenheizung und -kühlung mit kontrollierter mechanischer Belüftung, die ein angenehmes Raumklima zu jeder Jahreszeit sicherstellt. Eine Solarthermieanlage sorgt für die Warmwasserbereitung, während eine Photovoltaikanlage mit rund 3 kW Leistung den Energieverbrauch nachhaltig senkt.
Darüber hinaus profitieren Käufer von Steuervergünstigungen in Höhe von 124.000 € über 10 Jahre, was diese Immobilie nicht nur architektonisch, sondern auch wirtschaftlich besonders attraktiv macht.
Das Penthouse liegt in zentraler Lage über den Dächern der Stadt, mit Aufzug, internem Parkplatz, einem kleinen Gemeinschaftskeller und einem Innenhof in der Wohnanlage.
Diese Immobilie ist die perfekte Kombination aus modernem Wohnkomfort, individueller Gestaltungsmöglichkeit und nachhaltiger Technologie – ein Penthouse für Menschen, die das Besondere suchen und Wert auf Qualität, Lage und Zukunftsfähigkeit legen.
| 3 Zimmer Wohnung | 400.000 € | 113 m² |
| Florenz | Empoli | 5. Stock (Attiko) |
| Anzahl Schlafzimmer: 2 | Anzahl Bäder: 2 | Küche: Kochecke |
| Balkon: Nein | Terrasse: Ja | Garten: Nein |
| Aufzug: Ja | Keller: / | Garage/Stellplatz: 1 Stellplatz inklusive |
| Zustand: Neubau | Einrichtung: nicht möbliert | Heizung: autonom |
| Energ. Zertifizierung: A | Verfügbarkeit: sofort |
| 3 Zimmer Wohnung | 400.000 € |
| Florenz | Empoli |
| 113 m² | 5. Stock (Attiko) |
| Anzahl Schlafzimmer: 2 | Anzahl Bäder: 2 |
| Balkon: Nein | Terrasse: Ja |
| Garten: Nein | Küche: Kochecke |
| Keller: / | Garage/Stellplatz: 1 Stellplatz inklusive |
| Zustand: Neubau | Einrichtung: nicht möbliert |
| Aufzug: Ja | Heizung: autonom |
| Energ. Zertifizierung: A | |
| Verfügbarkeit: sofort |
Rimmo Real Estate
Innsbrucker Straße 29 - 39100 Bozen
tel +39 0471 982 844 - info@rimmo.it - MwSt. Nr. 02980260216
Toskana
tel +39 333 993 5635 - tuscany@rimmo.it - MwSt. Nr. 03240880215