Anfrage
Besichtigungstermin
Reihenhaus - Loro Ciuffenna
Charmantes Reihenhaus mit traditionellem Charakter
R06986LOEH - Dieses charmante Reihenhaus ist auf einer Seite freistehend und erstreckt sich über drei Etagen. Es befindet sich in dem kleinen, idyllischen Bergdorf Chiassaia und bietet eine authentische, ruhige Wohnatmosphäre abseits des Massentourismus. Die Lage eignet sich ideal als Rückzugsort für Ferienaufenthalte oder als attraktive Immobilie für die touristische Vermietung.
Vor dem Haus befindet sich ein kleiner Garten mit ca. 30 m², der sich hervorragend für entspannte Stunden im Freien eignet. Zusätzlich gehört ein separates Grundstück von etwa 550 m² unterhalb der Straße zur Immobilie, das vielseitig genutzt werden kann – beispielsweise als zusätzlicher Garten, für Freizeitaktivitäten oder als naturbelassene Grünfläche.
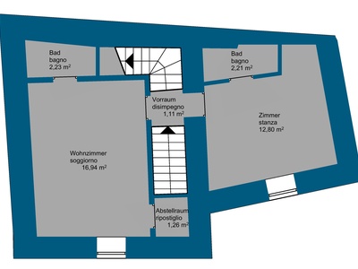
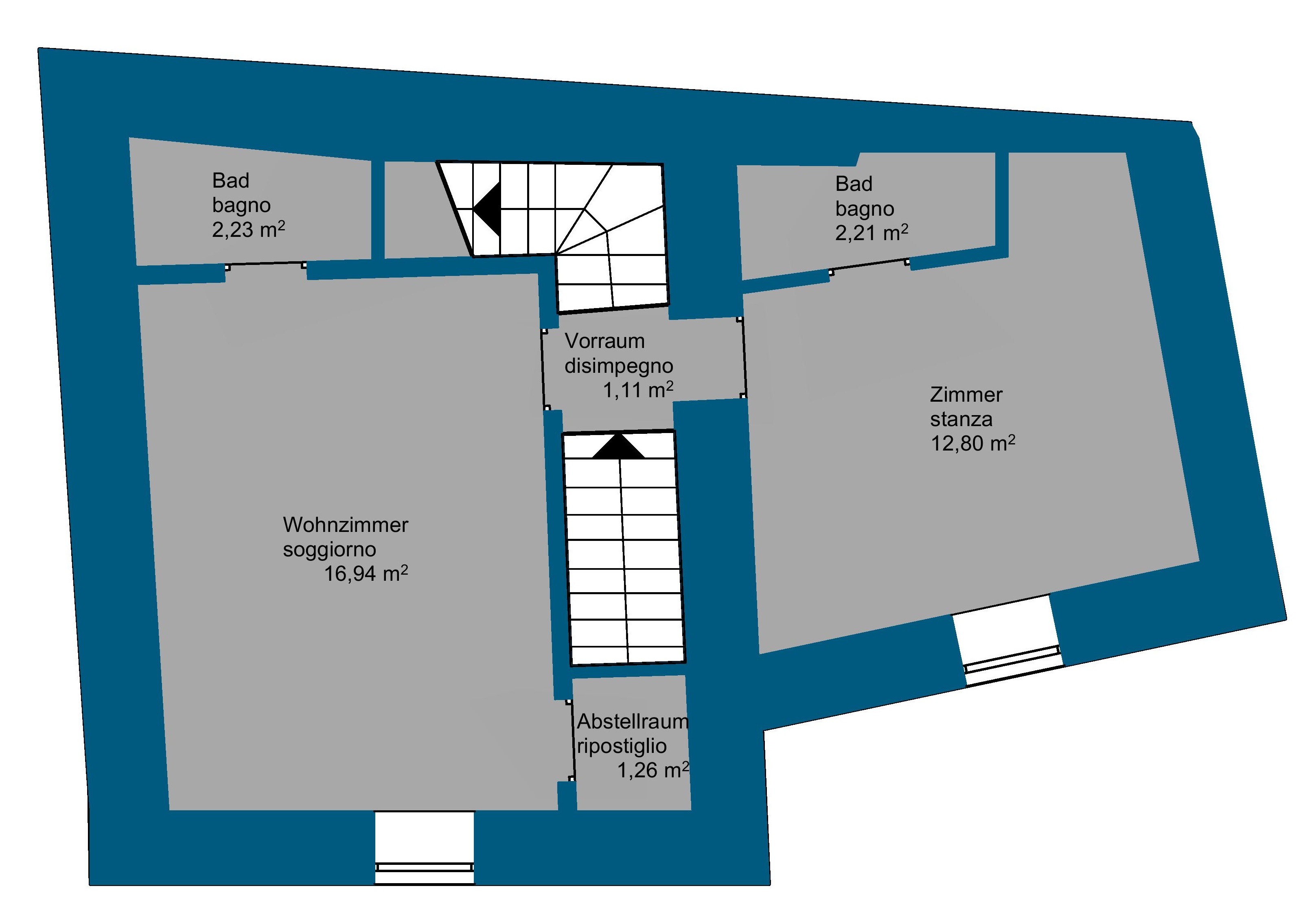
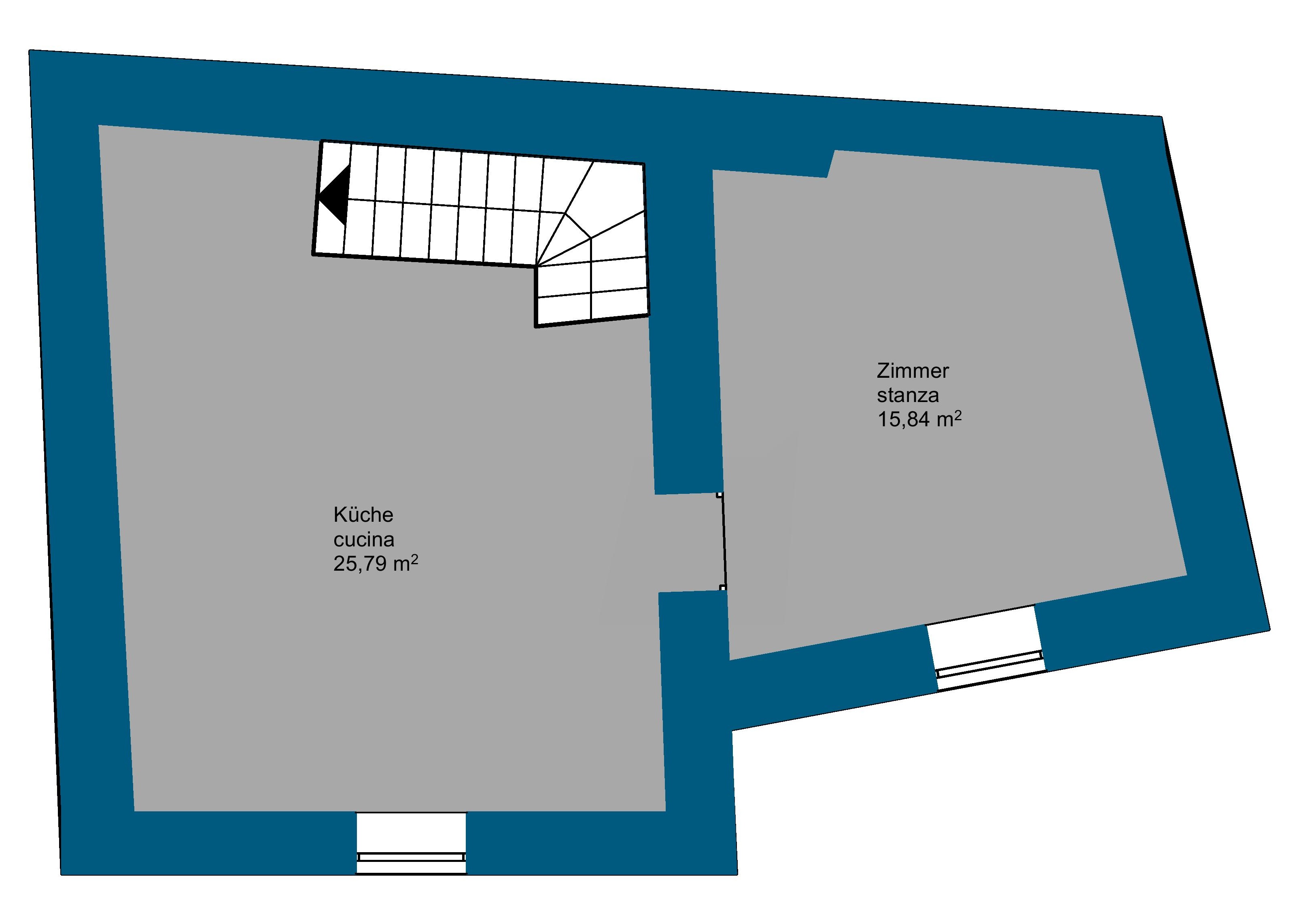
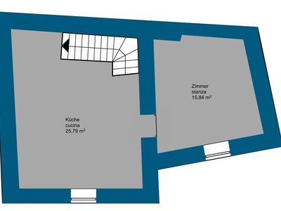
Das Haus wurde im Jahr 2008 renoviert, wobei der traditionelle Charakter bewusst erhalten blieb. Sichtbare Holzbalken und Terrakottaböden verleihen den Räumen ein warmes, authentisches Ambiente und unterstreichen den typischen Stil eines toskanischen Dorfhauses. Die Raumaufteilung über drei Ebenen bietet ausreichend Platz und eine angenehme Trennung von Wohn- und Schlafbereichen.
Die Beheizung erfolgt ausschließlich über Holzöfen, was den rustikalen Charakter des Hauses zusätzlich betont und besonders Liebhaber traditioneller Wohnformen anspricht. Insgesamt handelt es sich um eine charmante Immobilie mit viel Charakter, ideal für all jene, die ein authentisches Zuhause in einem ruhigen Bergdorf suchen oder eine interessante Gelegenheit für Ferienvermietung in naturnaher Lage nutzen möchten.
| Reihenhaus | 165.000 € | 150 m² |
| Arezzo | Loro Ciuffenna | 3 Etagen |
| Anzahl Schlafzimmer: 2 | Anzahl Bäder: 2 | Küche: Separate Küche |
| Balkon: Nein | Terrasse: Nein | Garten: Ja |
| Aufzug: Nein | Keller: 1 | Garage/Stellplatz: nein |
| Zustand: Gepflegt | Einrichtung: möbliert | Heizung: autonom |
| Energ. Zertifizierung: G | Verfügbarkeit: sofort |
| Reihenhaus | 165.000 € |
| Arezzo | Loro Ciuffenna |
| 150 m² | 3 Etagen |
| Anzahl Schlafzimmer: 2 | Anzahl Bäder: 2 |
| Balkon: Nein | Terrasse: Nein |
| Garten: Ja | Küche: Separate Küche |
| Keller: 1 | Garage/Stellplatz: nein |
| Zustand: Gepflegt | Einrichtung: möbliert |
| Aufzug: Nein | Heizung: autonom |
| Energ. Zertifizierung: G | |
| Verfügbarkeit: sofort |
Rimmo Real Estate
Innsbrucker Straße 29 - 39100 Bozen
tel +39 0471 982 844 - info@rimmo.it - MwSt. Nr. 02980260216
Toskana
tel +39 333 993 5635 - tuscany@rimmo.it - MwSt. Nr. 03240880215