Anfrage
Besichtigungstermin
Einfamilienhaus - Scarperia e San Piero
Typischer Palazzo im historischen Zentrum von Scarperia
Inmitten des historischen Zentrums von Scarperia und doch in einer ruhigen Lage, präsentiert sich dieser typische Palazzo in seiner vollen Pracht. Das Haus, dessen Geschichte bis ins Jahr 1400 zurückreicht, verkörpert in jeder Facette den traditionellen italienischen Stil und Charme, der durch die handgemalten Wand- und Deckenfresken aus dem Jahre 1900 eindrucksvoll hervorgehoben wird.
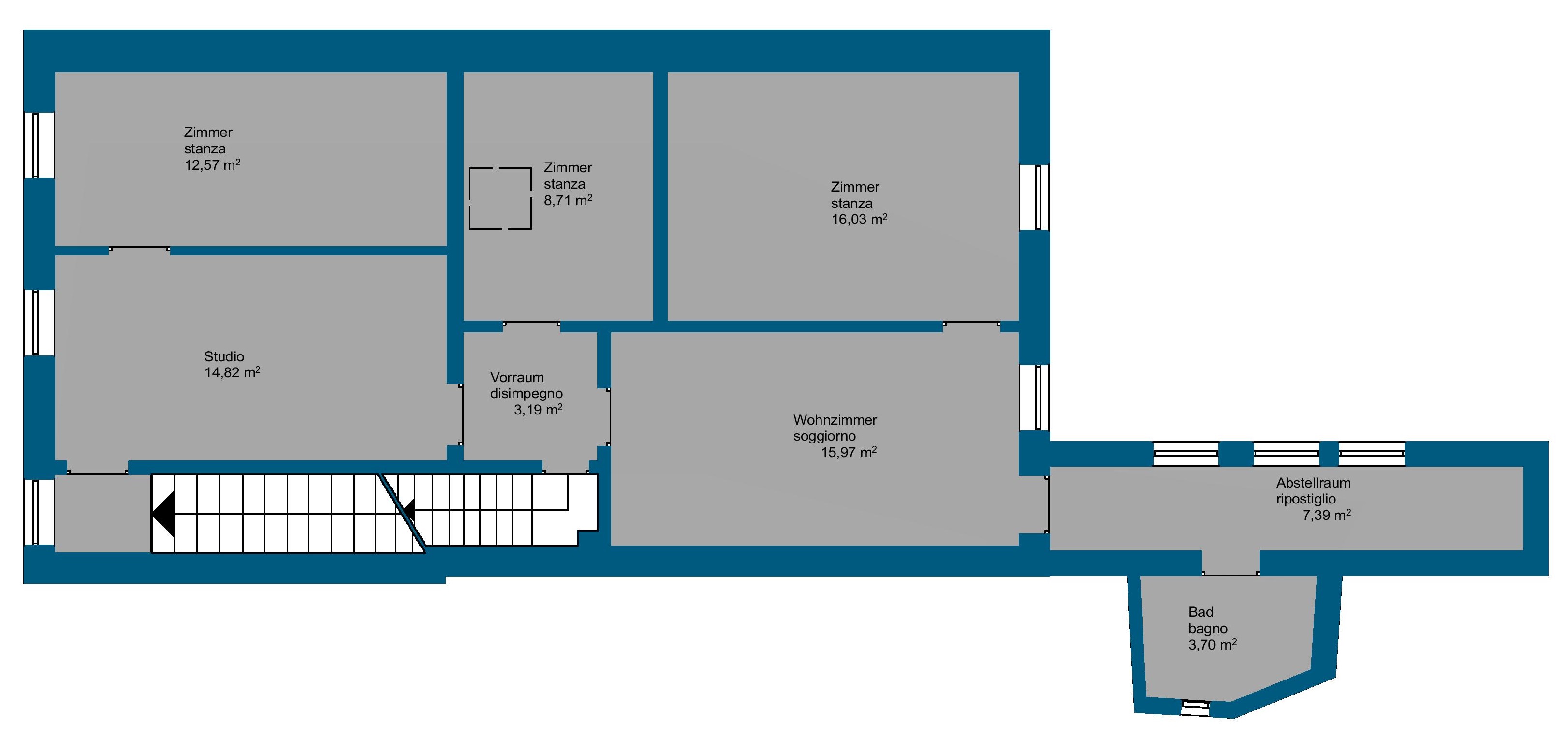
Die Immobilie erstreckt sich über drei großzügig geschnittene Etagen, hinzu kommen zusätzliche Dachräume und ein vielseitig nutzbarer Keller im Untergeschoss, was den Wohnraum in dieser historischen Immobilie perfekt abrundet. Der Palazzo beherbergt eine Vielzahl an lichtdurchfluteten Zimmern - helle und freundliche Räumlichkeiten, die durch die einfallenden Sonnenstrahlen stets in ein warmes, gemütliches Licht getaucht werden. Hier finden Sie bis zu acht Schlafzimmer sowie drei Bäder, was dieses Objekt zu einer idealen Investition für eine Großfamilie oder als potenzielles Gastgewerbeobjekt macht. Obwohl das Haus teilweise saniert werden sollte, wurden einige der Arbeiten bis 2022 durchgeführt. Dadurch kann der neue Besitzer frei entscheiden, wie er das historische Ambiente des Hauses nutzen oder modernisieren möchte. Ein ca. 35 m² großer Innenhof bietet außerdem genügend Platz für Outdoor-Aktivitäten wie Sommerabende mit Freunden und Familie oder einfach nur zum Entspannen an einem ruhigen Nachmittag. Auch technisch gesehen überzeugt das Haus, denn es wird mit Flüssiggas beheizt, was für einen hohen Wohnkomfort sorgt. Dieser Palazzo ist nicht nur das perfekte Zuhause, sondern auch eine großartige Möglichkeiten zur Vermietung als Ferienhaus. Die Nähe zu den beliebten Städten Mugello und Florenz macht es besonders attraktiv für Touristen und Kulturinteressierte. Für den alltäglichen Bedarf sind alle wichtigen Infrastrukturen in unmittelbarer Nähe vorhanden. Egal ob Sie schnell ein paar Besorgungen erledigen müssen oder ein entspanntes Abendessen in einem der zahlreichen Restaurants genießen möchten, alles ist nur einen Steinwurf entfernt.
Ein Stück Geschichte im Zentrum Scarperias – schlagen Sie zu!
| Einfamilienhaus | 310.000 € | 355 m² |
| Florenz | Scarperia e San Piero | 3 Etagen |
| Anzahl Schlafzimmer: 8 | Anzahl Bäder: 3 | Küche: Separate Küche |
| Balkon: Nein | Terrasse: Nein | Garten: Ja |
| Aufzug: Nein | Keller: 1 | Garage/Stellplatz: nein |
| Zustand: Teilweise zu sanieren | Einrichtung: nicht möbliert | Heizung: autonom |
| Energ. Zertifizierung: F | Verfügbarkeit: sofort |
| Einfamilienhaus | 310.000 € |
| Florenz | Scarperia e San Piero |
| 355 m² | 3 Etagen |
| Anzahl Schlafzimmer: 8 | Anzahl Bäder: 3 |
| Balkon: Nein | Terrasse: Nein |
| Garten: Ja | Küche: Separate Küche |
| Keller: 1 | Garage/Stellplatz: nein |
| Zustand: Teilweise zu sanieren | Einrichtung: nicht möbliert |
| Aufzug: Nein | Heizung: autonom |
| Energ. Zertifizierung: F | |
| Verfügbarkeit: sofort |
Rimmo Real Estate
Innsbrucker Straße 29 - 39100 Bozen
tel +39 0471 982 844 - info@rimmo.it - MwSt. Nr. 02980260216
Toskana
tel +39 333 993 5635 - tuscany@rimmo.it - MwSt. Nr. 03240880215