Anfrage
Besichtigungstermin
4 Zimmer Wohnung - Ritten
Neubauwohnung im letzten Stock!
R054716RI4Z - Diese bezaubernden Wohnungen, welche Teil eines hochwertigen Neubaus in Lengstein am sonnigen Ritten sind, sorgen dank ihrer gehobenen Bauqualität und ihrer ruhigen Lage für ein einzigartiges Wohnerlebnis.
Sie haben die Wahl zwischen 2-, 3- und 4-Zimmer-Wohnungen, die sich dank ihres durchdachten Layouts durch ihre Großzügigkeit und Helligkeit auszeichnen. Das Gebäude repräsentiert einen Klimahaus A Nature Standard, was eine nachhaltig hohe Lebensqualität bedeutet. Dies garantiert nicht nur eine exzellente Energieeffizienz und damit niedrige Betriebskosten, sondern auch einen CO2-neutralen Fußabdruck, der zum Schutz unserer Umwelt beiträgt. Mit einem Blick auf die Berge und einer ländlichen Idylle, die das Auge und die Seele gleichermaßen berührt, bietet es sich an, einige dieser Wohnungen gegen einen Aufpreis freizustellen und sie als Ferienwohnungen zu nutzen. So können Sie die Schönheit dieser Gegend auch in Ihren Ferien in vollen Zügen genießen. Zur Grundausstattung jeder Wohnung gehört ein eigener Keller, der reichlich Stauraum für all diejenigen Dinge bietet, die Sie im Alltag brauchen - von Winterreifen über Ski bis hin zu sonstigen Sportgeräten. Darüber hinaus besteht die Möglichkeit, eine Garage zum Preis ab 27.000 € dazu zu erwerben, die Schutz und Komfort für Ihr Fahrzeug sicherstellt.
Alles in allem bieten diese Wohnungen eine einmalige Möglichkeit, sich in einer ländlichen Umgebung niederzulassen, ohne auf die Vorzüge einer hochwertigen, modernen Wohnung verzichten zu müssen.
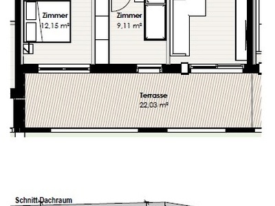
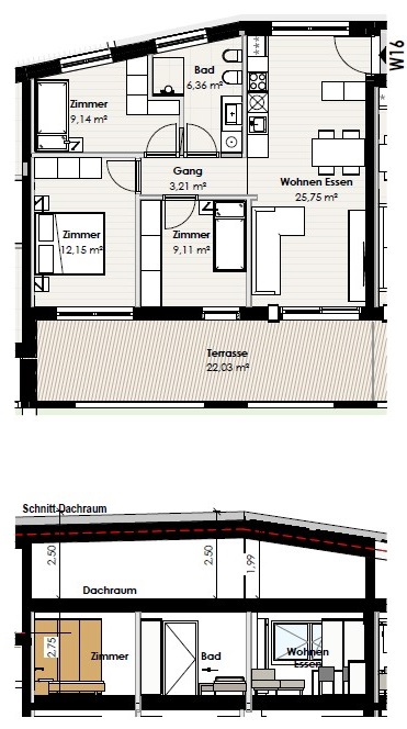
| 4 Zimmer Wohnung | 585.000 € | 114 m² |
| Salten/Schlern | Ritten | 2. Stock (Dachgeschoss) |
| Anzahl Schlafzimmer: 3 | Anzahl Bäder: 1 | Küche: Kochecke |
| Balkon: Nein | Terrasse: Ja | Garten: Nein |
| Aufzug: Ja | Keller: 1 | Garage/Stellplatz: Garage extra |
| Zustand: Neubau | Einrichtung: nicht möbliert | Heizung: zentral |
| Energ. Zertifizierung: A | Verfügbarkeit: sofort |
| 4 Zimmer Wohnung | 585.000 € |
| Salten/Schlern | Ritten |
| 114 m² | 2. Stock (Dachgeschoss) |
| Anzahl Schlafzimmer: 3 | Anzahl Bäder: 1 |
| Balkon: Nein | Terrasse: Ja |
| Garten: Nein | Küche: Kochecke |
| Keller: 1 | Garage/Stellplatz: Garage extra |
| Zustand: Neubau | Einrichtung: nicht möbliert |
| Aufzug: Ja | Heizung: zentral |
| Energ. Zertifizierung: A | Konventioniert: nein |
| Verfügbarkeit: sofort |
Rimmo Real Estate
Innsbrucker Straße 29 - 39100 Bozen
tel +39 0471 982 844 - info@rimmo.it - MwSt. Nr. 02980260216
Toskana
tel +39 333 993 5635 - tuscany@rimmo.it - MwSt. Nr. 03240880215