Richiesta
Concordare visita
Bilocale - Desenzano del Garda
Elegante appartamento con giardino
Nel cuore di Desenzano del Garda, direttamente sulle rive del lago, sta nascendo un complesso residenziale unico nel suo genere, che unisce eleganza, modernità e una delle posizioni più ambite del Lago di Garda. Il progetto comprende la completa ristrutturazione di una villa storica, nella quale sorgeranno 19 appartamenti di prima classe, nonché la costruzione di un moderno complesso residenziale con altre 16 unità di pregio. Entrambi gli edifici si integrano armoniosamente nell'ambiente circostante e offrono un ambiente residenziale esclusivo per le esigenze più elevate.
La posizione direttamente sul lago è un vantaggio straordinario: da qui è possibile raggiungere comodamente a piedi il pittoresco centro storico, i ristoranti, le boutique e le attrazioni turistiche di Desenzano, in un perfetto equilibrio tra tranquillità , privacy e qualità della vita urbana. La posizione privilegiata sull'acqua conferisce a questo complesso residenziale un valore ineguagliabile e lo rende un'occasione rara sul mercato immobiliare.
I futuri appartamenti convincono per le loro generose metrature, i materiali di alta qualità e un design che valorizza al meglio la luce e lo spazio. Ampie terrazze e balconi offrono ulteriore spazio abitativo all'aperto e una vista meravigliosa. Un giardino comune accuratamente progettato crea un'oasi verde, ideale per rilassarsi.
Il progetto attribuisce grande importanza alla sostenibilità e al comfort tecnico. I moderni sistemi di automazione domestica garantiscono il massimo controllo e benessere, mentre l'intero impianto è stato progettato per garantire l'efficienza energetica.
Un altro punto di forza è l'esclusiva piscina comune con vista panoramica sul lago, che funziona con un innovativo sistema di depurazione a ozono, una soluzione particolarmente delicata e rispettosa dell'ambiente.
Ogni unità abitativa viene venduta con un garage privato dotato di stazione di ricarica per veicoli elettrici e una cantina, offrendo così il massimo comfort e funzionalità ottimale.
Questo complesso residenziale unisce lusso, natura e architettura elegante in uno dei luoghi più belli del Lago di Garda: un'occasione unica per chi è alla ricerca di qualcosa di speciale.
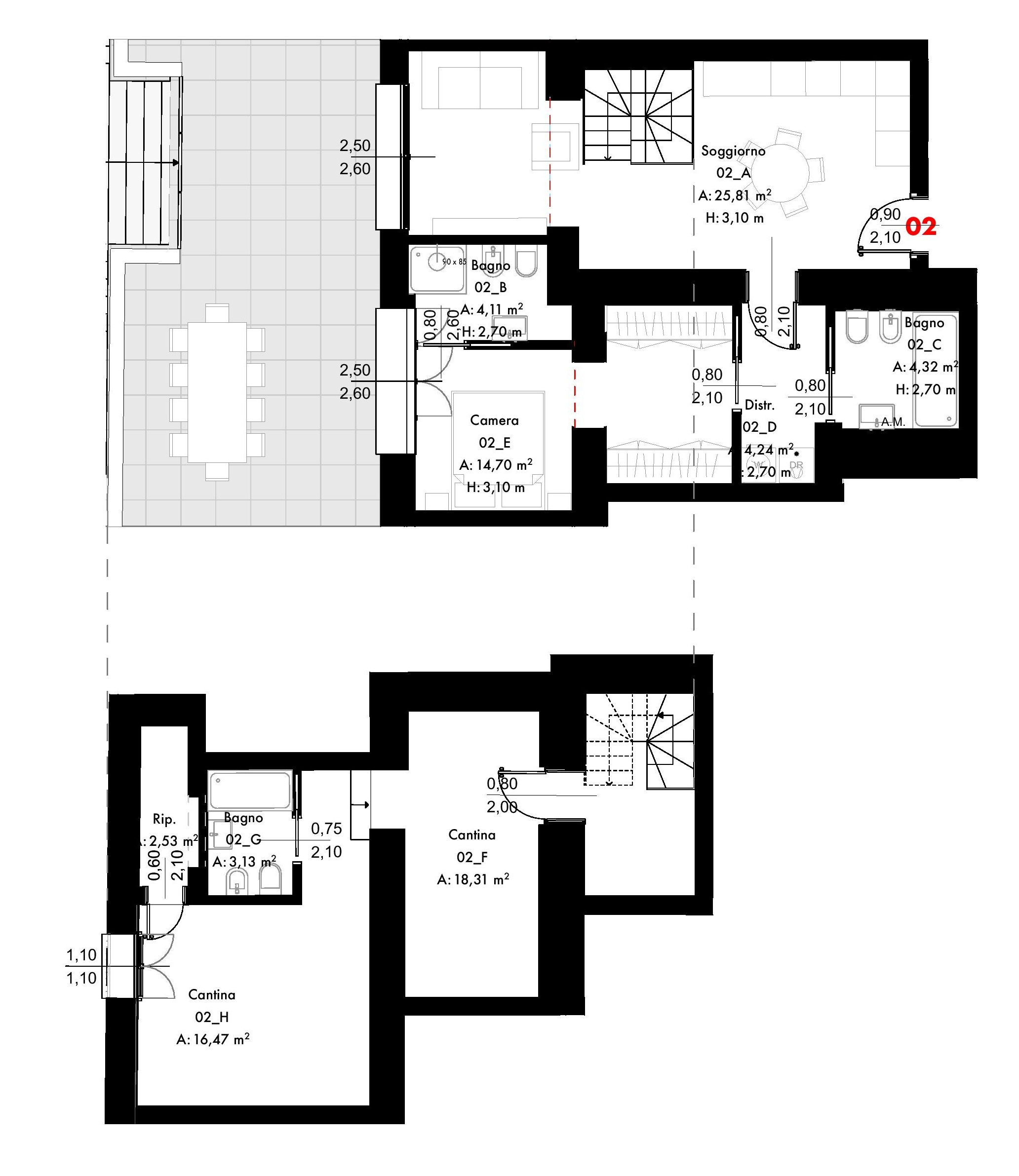
| Bilocale | 1.150.000 € | 134 mq |
| Lago di Garda Ovest | Desenzano del Garda | piano terra |
| Stanze da letto: 1 | Bagni: 3 | Cucina: angolo cottura |
| Balcone: No | Terrazza: Si | Giardino: Si |
| Ascensore: Si | Cantina: 1 | Garage/posto auto: garage incluso |
| Stato: nuova costruzione | Arredamento: non arredato | Riscaldamento: centralizzato |
| A.P.E.: A | Vista lago: si | Disponibilitá: fine 2026 |
| Bilocale | 1.150.000 € |
| Lago di Garda Ovest | Desenzano del Garda |
| 134 mq | piano terra |
| Stanze da letto: 1 | Bagni: 3 |
| Balcone: No | Terrazza: Si |
| Giardino: Si | Cucina: angolo cottura |
| Cantina: 1 | Garage/posto auto: garage incluso |
| Stato: nuova costruzione | Arredamento: non arredato |
| Ascensore: Si | Riscaldamento: centralizzato |
| A.P.E.: A | Vista lago: si |
| Disponibilitá: fine 2026 |
Rimmo Real Estate
Via Innsbruck 29 - 39100 Bolzano
tel +39 0471 982 844 - info@rimmo.it - Part. IVA 02980260216
Toscana
tel +39 333 993 5635 - tuscany@rimmo.it - Part. IVA 03240880215