Anfrage
Besichtigungstermin
Villa - Monterchi
Moderne Villa in zentraler Lage
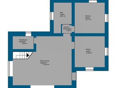
R06979MOVI - Diese schöne Villa wurde im Jahr 2019 neu gebaut und überzeugt durch ihre moderne Architektur, hochwertige technische Ausstattung und eine besonders helle, freundliche Wohnatmosphäre. Große Fensterflächen durchziehen das gesamte Haus und lassen viel Tageslicht in die Räume, wodurch ein offenes und angenehmes Wohngefühl entsteht. Gleichzeitig ermöglichen sie einen harmonischen Blick in den Garten und schaffen eine fließende Verbindung zwischen Innen- und Außenbereich.
Die Lage der Villa ist äußerst praktisch und attraktiv: Nur wenige Schritte vom Dorfzentrum entfernt, sind sämtliche Annehmlichkeiten des täglichen Bedarfs wie Geschäfte, Restaurants, Schulen und Dienstleistungen bequem zu Fuß erreichbar. Dennoch bietet das Anwesen dank des eigenen Grundstücks von ca. 1.044 m² ausreichend Privatsphäre und Ruhe.
Der Garten ist vollständig umzäunt und bietet vielfältige Nutzungsmöglichkeiten – ideal für Familien, Haustiere oder entspannte Stunden im Freien. Die großzügige Außenfläche lädt zur individuellen Gestaltung ein, sei es als gepflegte Grünfläche, Terrasse oder gemütlicher Rückzugsort.
In technischer Hinsicht ist die Villa zeitgemäß und komfortabel ausgestattet. Die Beheizung erfolgt über Erdgas mit klassischen Heizkörpern und wird durch eine Wärmepumpe ergänzt, die sowohl für Kühlung als auch für Heizung genutzt werden kann. Eine moderne Hausautomationsanlage ermöglicht die zentrale Steuerung von Beleuchtung und Heizung und sorgt für zusätzlichen Komfort und Energieeffizienz. Darüber hinaus verfügt das Haus über eine kontrollierte mechanische Belüftung, die jederzeit für frische Luft und ein angenehmes Raumklima sorgt.
Die Böden sind mit hochwertigem Laminat ausgestattet, das pflegeleicht, langlebig und optisch ansprechend ist. Insgesamt handelt es sich um eine moderne, funktionale und sehr gut ausgestattete Villa, die durch ihre Helligkeit, ihre zentrale Lage und ihren hohen Wohnkomfort überzeugt.
| Villa | 390.000 € | 144 m² |
| Arezzo | Monterchi | 2 Etagen |
| Anzahl Schlafzimmer: 3 | Anzahl Bäder: 2 | Küche: Separate Küche |
| Balkon: Ja | Terrasse: Ja | Garten: Ja |
| Aufzug: Nein | Keller: / | Garage/Stellplatz: mehrere Stellplätze |
| Zustand: Neuwertig | Einrichtung: teilweise möbliert | Heizung: autonom |
| Energ. Zertifizierung: A | Verfügbarkeit: zu vereinbaren |
| Villa | 390.000 € |
| Arezzo | Monterchi |
| 144 m² | 2 Etagen |
| Anzahl Schlafzimmer: 3 | Anzahl Bäder: 2 |
| Balkon: Ja | Terrasse: Ja |
| Garten: Ja | Küche: Separate Küche |
| Keller: / | Garage/Stellplatz: mehrere Stellplätze |
| Zustand: Neuwertig | Einrichtung: teilweise möbliert |
| Aufzug: Nein | Heizung: autonom |
| Energ. Zertifizierung: A | |
| Verfügbarkeit: zu vereinbaren |
Rimmo Real Estate
Innsbrucker Straße 29 - 39100 Bozen
tel +39 0471 982 844 - info@rimmo.it - MwSt. Nr. 02980260216
Toskana
tel +39 333 993 5635 - tuscany@rimmo.it - MwSt. Nr. 03240880215