Anfrage
Besichtigungstermin
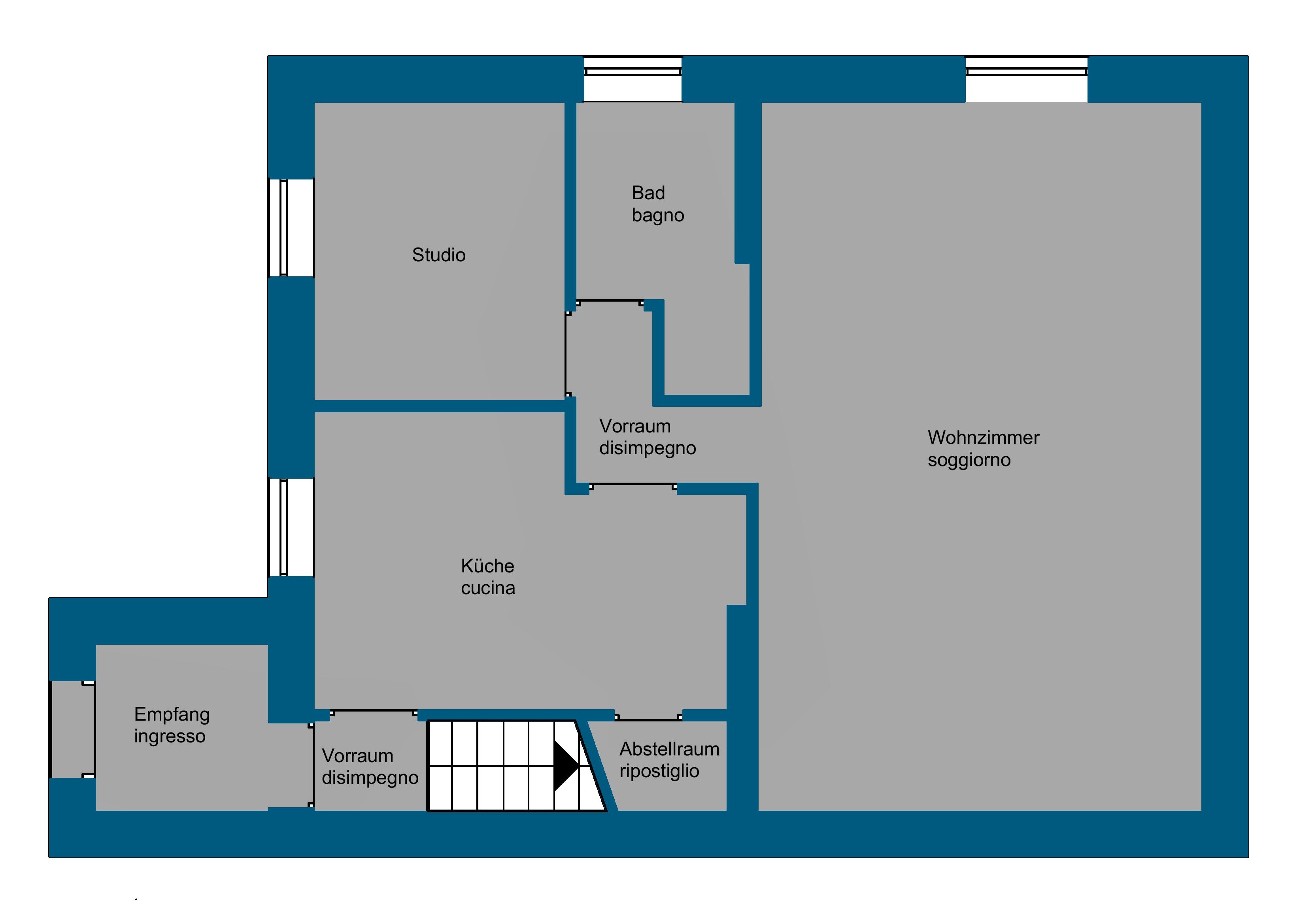
Doppelhaushälfte - Rignano sull'Arno
Sanierte Doppelhaushälfte in schöner Lage
R06974RIDH - Diese besondere Immobilie ist Teil eines historischen Bauernhauses aus dem 19. Jahrhundert und befindet sich in traumhafter Panoramalage. Die Einheit ist auf zwei Seiten freistehend und bietet dadurch ein hohes Maß an Privatsphäre sowie einen freien Blick auf die umliegende Landschaft. Die erhöhte Lage sorgt für eine ruhige, naturnahe Wohnatmosphäre und unterstreicht den authentischen Charakter des Anwesens.
Im Jahr 2023 wurde die Immobilie umfassend renoviert und dabei von den Maßnahmen des Bonus 110 profitiert. Im Zuge dieser hochwertigen Sanierung wurden neue Holzfenster und -türen eingebaut, die nicht nur für eine ausgezeichnete Wärmedämmung sorgen, sondern sich auch harmonisch in das historische Erscheinungsbild des Gebäudes einfügen. Zudem wurde eine moderne Photovoltaikanlage mit Batteriespeicher installiert, die eine effiziente und nachhaltige Energieversorgung ermöglicht. Ein neuer Heizkessel ergänzt die technische Ausstattung und garantiert zeitgemäßen Wohnkomfort.
Besonderes Augenmerk wurde bei der Renovierung auf den Erhalt der ursprünglichen architektonischen Merkmale aus dem 19. Jahrhundert gelegt. Traditionelle Elemente und historische Details wurden sorgfältig bewahrt und mit modernen technischen Lösungen kombiniert, sodass der Charme der Vergangenheit mit den Anforderungen heutigen Wohnens in Einklang steht.
Zur Immobilie gehört ein privater Garten mit einer Fläche von ca. 400 m², der sich ideal als Rückzugsort im Freien, für entspannte Stunden oder zur individuellen Gestaltung eignet. Ergänzt wird das Anwesen durch ein angrenzendes Waldgrundstück von etwa 1 Hektar, das zusätzliche Privatsphäre, Naturverbundenheit und vielfältige Nutzungsmöglichkeiten bietet. Insgesamt handelt es sich um eine seltene Gelegenheit, ein geschichtsträchtiges Anwesen mit moderner Ausstattung in einzigartiger Panoramalage zu erwerben.
| Doppelhaushälfte | 460.000 € | 160 m² |
| Florenz | Rignano sull'Arno | 2 Etagen |
| Anzahl Schlafzimmer: 4 | Anzahl Bäder: 2 | Küche: Separate Küche |
| Balkon: Nein | Terrasse: Ja | Garten: Ja |
| Aufzug: Nein | Keller: 1 | Garage/Stellplatz: mehrere Stellplätze |
| Zustand: Saniert | Einrichtung: nicht möbliert | Heizung: autonom |
| Energ. Zertifizierung: A | Verfügbarkeit: sofort |
| Doppelhaushälfte | 460.000 € |
| Florenz | Rignano sull'Arno |
| 160 m² | 2 Etagen |
| Anzahl Schlafzimmer: 4 | Anzahl Bäder: 2 |
| Balkon: Nein | Terrasse: Ja |
| Garten: Ja | Küche: Separate Küche |
| Keller: 1 | Garage/Stellplatz: mehrere Stellplätze |
| Zustand: Saniert | Einrichtung: nicht möbliert |
| Aufzug: Nein | Heizung: autonom |
| Energ. Zertifizierung: A | |
| Verfügbarkeit: sofort |
Rimmo Real Estate
Innsbrucker Straße 29 - 39100 Bozen
tel +39 0471 982 844 - info@rimmo.it - MwSt. Nr. 02980260216
Toskana
tuscany@rimmo.it - MwSt. Nr. 03240880215