Anfrage
Besichtigungstermin
Bauernhaus/Rustico - Cortona
Außergewöhnlicher Rustico mit großzügigem Park und Pool
R06889CORU - Dieser außergewöhnliche Rustico präsentiert sich als wahres Liebhaberobjekt, eingebettet in einen rund 4.000 m² großen, gepflegten Park mit altem Baumbestand und einem großzügigen Swimmingpool von 12 × 6 Metern. Die Immobilie verbindet historischen Charme mit zeitloser Eleganz und besticht durch ihre besondere Geschichte: Im Jahr 1987 wurde das Anwesen vom früheren Eigentümer, dem Hollywood-Schauspieler Malcolm McDowell (bekannt aus „A Clockwork Orange“), vollständig und mit großer Sorgfalt saniert.
Die Renovierung erfolgte bewusst in einem konservativen, klassischen Stil, bei dem hochwertige Materialien und traditionelle Elemente im Vordergrund standen. Dadurch konnte der authentische Charakter des Rusticos bewahrt und zugleich ein hohes Maß an Wohnkomfort geschaffen werden. Heute präsentiert sich das Haus in einem ausgezeichneten Zustand – Renovierungsarbeiten sind nicht erforderlich.
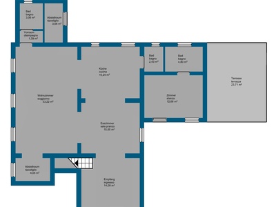
Das Herzstück des Hauses bildet der großzügige Wohnbereich mit einem beeindruckenden Kamin, der eine warme und einladende Atmosphäre schafft. Angrenzend befindet sich die große Küche mit zentraler Kochinsel, ideal für gesellige Abende und kulinarische Genüsse. Eine wunderschöne Veranda erweitert den Wohnraum nach außen und lädt dazu ein, den Blick in den Park zu genießen oder entspannte Stunden im Freien zu verbringen.
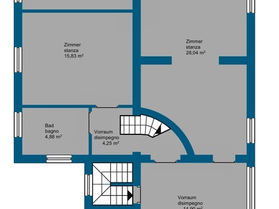
Die Immobilie verfügt über drei komfortable Schlafzimmer, jeweils mit eigenem Badezimmer, die Privatsphäre und Funktionalität auf hohem Niveau bieten. Ein besonderes architektonisches Highlight ist der Turm, der dem Anwesen zusätzlich Charakter und Einzigartigkeit verleiht. Im Außenbereich ergänzen ein traditioneller Holzofen für Brot und Pizza sowie der Pool das Angebot und machen das Anwesen perfekt für gesellige Momente und entspannte Sommertage.
Die Wasserversorgung erfolgt autark über einen etwa 120 Meter tiefen artesischen Brunnen, da kein Anschluss an das öffentliche Wassernetz besteht. Beheizt wird das Haus über eine Kombination aus Flüssiggas sowie einer Wärmepumpe für Heizen und Kühlen, was für Flexibilität und Komfort zu jeder Jahreszeit sorgt.
Ein außergewöhnlicher Rustico mit Geschichte, Stil und Charakter – ideal für all jene, die ein sofort beziehbares Anwesen mit besonderer Ausstrahlung und hochwertiger Ausstattung suchen.
| Bauernhaus/Rustico | 1.300.000 € | 207 m² |
| Arezzo | Cortona | 2 Etagen |
| Anzahl Schlafzimmer: 3 | Anzahl Bäder: 4 | Küche: Kochecke |
| Balkon: Nein | Terrasse: Ja | Garten: Ja |
| Aufzug: Nein | Keller: / | Garage/Stellplatz: mehrere Stellplätze |
| Zustand: Gepflegt | Einrichtung: möbliert | Heizung: autonom |
| Energ. Zertifizierung: G | Verfügbarkeit: sofort |
| Bauernhaus/Rustico | 1.300.000 € |
| Arezzo | Cortona |
| 207 m² | 2 Etagen |
| Anzahl Schlafzimmer: 3 | Anzahl Bäder: 4 |
| Balkon: Nein | Terrasse: Ja |
| Garten: Ja | Küche: Kochecke |
| Keller: / | Garage/Stellplatz: mehrere Stellplätze |
| Zustand: Gepflegt | Einrichtung: möbliert |
| Aufzug: Nein | Heizung: autonom |
| Energ. Zertifizierung: G | |
| Verfügbarkeit: sofort |
Rimmo Real Estate
Innsbrucker Straße 29 - 39100 Bozen
tel +39 0471 982 844 - info@rimmo.it - MwSt. Nr. 02980260216
Toskana
tel +39 333 993 5635 - tuscany@rimmo.it - MwSt. Nr. 03240880215