Anfrage
Besichtigungstermin
3 Zimmer Wohnung - Kastelbell/Tschars
Helle Wohnung mit Terrasse
R06416KA3Z - In Latschinig, einer charmanten Ortschaft der Gemeinde Kastelbell im Herzen des Vinschgaus, entsteht ein hochwertiges Neubauprojekt mit nur sieben exklusiven Wohneinheiten. Das Projekt vereint moderne Architektur mit energieeffizientem Bauen und bietet Wohnkomfort auf höchstem Niveau.
Zum Verkauf stehen insgesamt sieben Wohnungen, darunter vier 3-Zimmer-Wohnungen und drei großzügige 4-Zimmer-Wohnungen. Jede Einheit überzeugt mit einem durchdachten Grundriss, lichtdurchfluteten Räumen und hochwertiger Bauausführung. Zu jeder Wohnung gehört ein eigener Keller, der im Kaufpreis bereits enthalten ist und praktischen zusätzlichen Stauraum bietet. PKW-Stellplätze stehen ebenfalls zur Verfügung und können je nach Bedarf separat erworben werden – eine praktische Lösung für alle, die Wert auf Flexibilität legen.
Das Gebäude wird im KlimaHaus A-Standard errichtet und erfüllt damit höchste Anforderungen an Energieeffizienz und Nachhaltigkeit. Dies garantiert nicht nur niedrige Heizkosten, sondern auch ein besonders angenehmes Raumklima – Sommer wie Winter.
Die Lage in Latschinig punktet mit Ruhe, Naturverbundenheit und gleichzeitig guter Anbindung an das Dorfzentrum. Wander- und Radwege, Nahversorger, Schulen und öffentliche Verkehrsmittel befinden sich in bequemer Reichweite.
Die Fertigstellung und Übergabe der Wohnungen ist für Ende 2026 geplant. Interessenten haben somit noch die Möglichkeit, bei der Innenausstattung mitzugestalten und persönliche Wünsche in die Planung einzubringen.
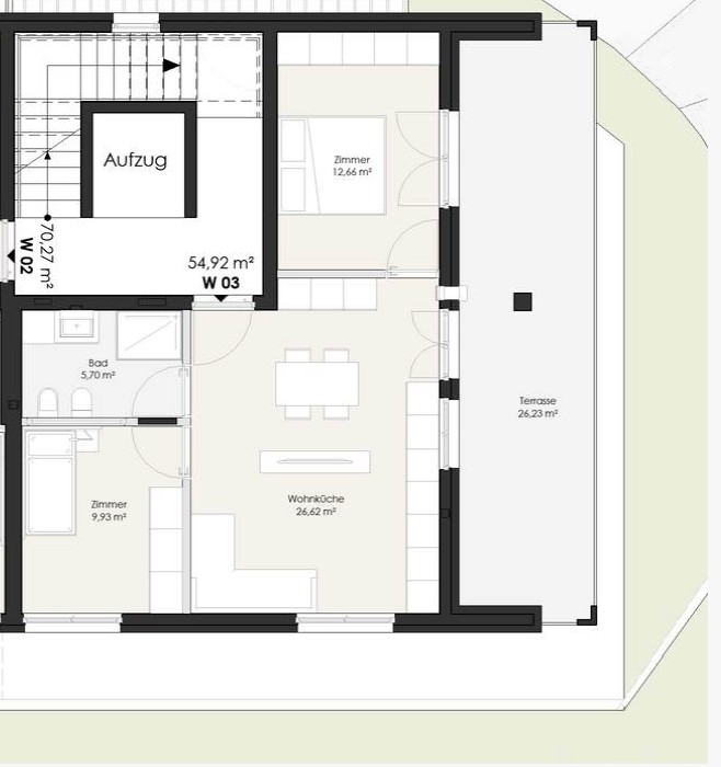
| 3 Zimmer Wohnung | 295.000 € | 75 m² |
| Vinschgau | Kastelbell/Tschars | 1. Stock |
| Anzahl Schlafzimmer: 2 | Anzahl Bäder: 1 | Küche: Kochecke |
| Balkon: Nein | Terrasse: Ja | Garten: Nein |
| Aufzug: Ja | Keller: 1 | Garage/Stellplatz: Stellplatz im Freien extra |
| Zustand: Neubau | Einrichtung: nicht möbliert | Heizung: zentral |
| Energ. Zertifizierung: A | Verfügbarkeit: Ende 2026 |
| 3 Zimmer Wohnung | 295.000 € |
| Vinschgau | Kastelbell/Tschars |
| 75 m² | 1. Stock |
| Anzahl Schlafzimmer: 2 | Anzahl Bäder: 1 |
| Balkon: Nein | Terrasse: Ja |
| Garten: Nein | Küche: Kochecke |
| Keller: 1 | Garage/Stellplatz: Stellplatz im Freien extra |
| Zustand: Neubau | Einrichtung: nicht möbliert |
| Aufzug: Ja | Heizung: zentral |
| Energ. Zertifizierung: A | Konventioniert: ja |
| Verfügbarkeit: Ende 2026 |
Rimmo Real Estate
Innsbrucker Straße 29 - 39100 Bozen
tel +39 0471 982 844 - info@rimmo.it - MwSt. Nr. 02980260216
Toskana
tel +39 333 993 5635 - tuscany@rimmo.it - MwSt. Nr. 03240880215