Anfrage
Besichtigungstermin
2 Zimmer Wohnung - Brixen
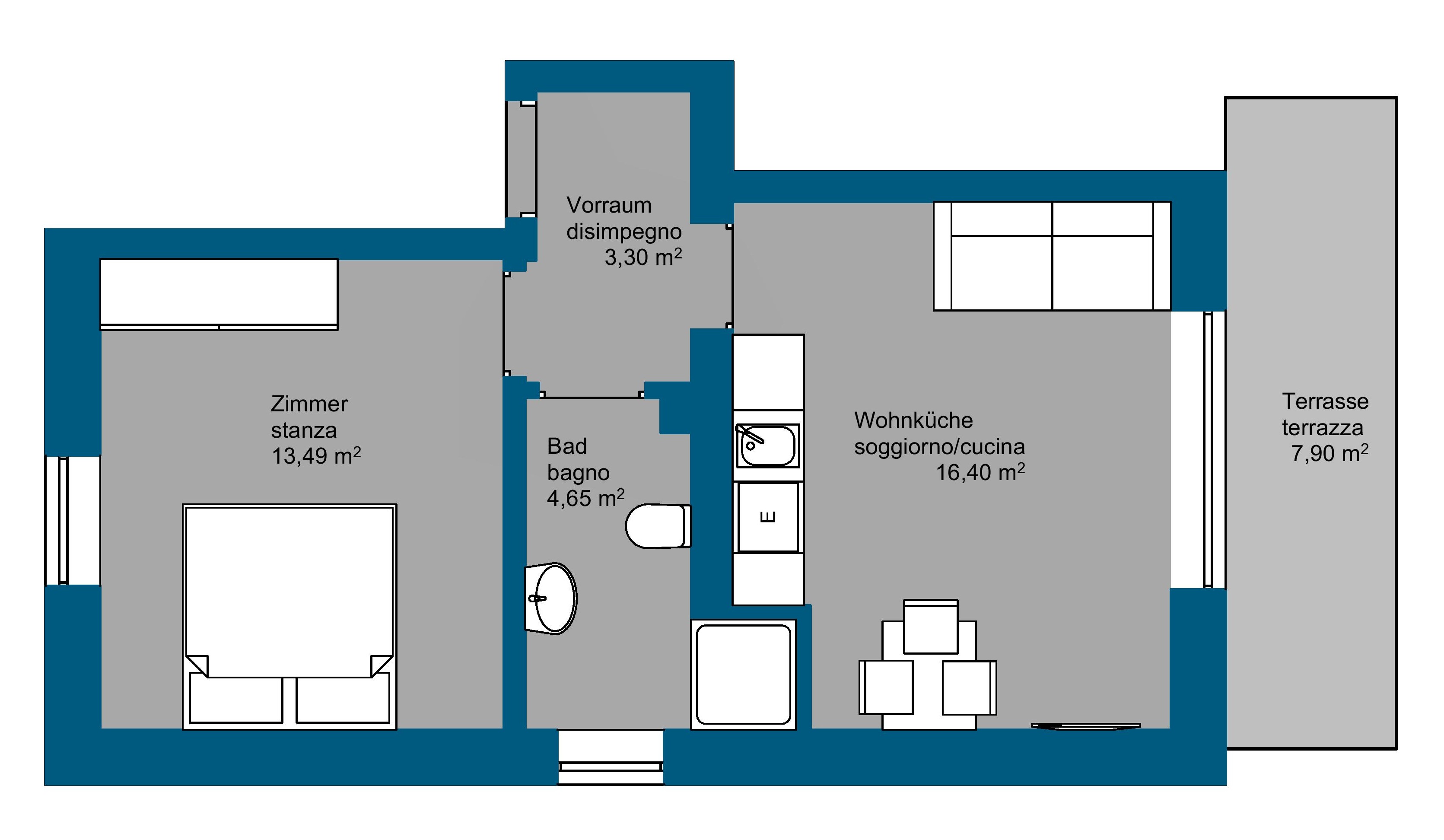
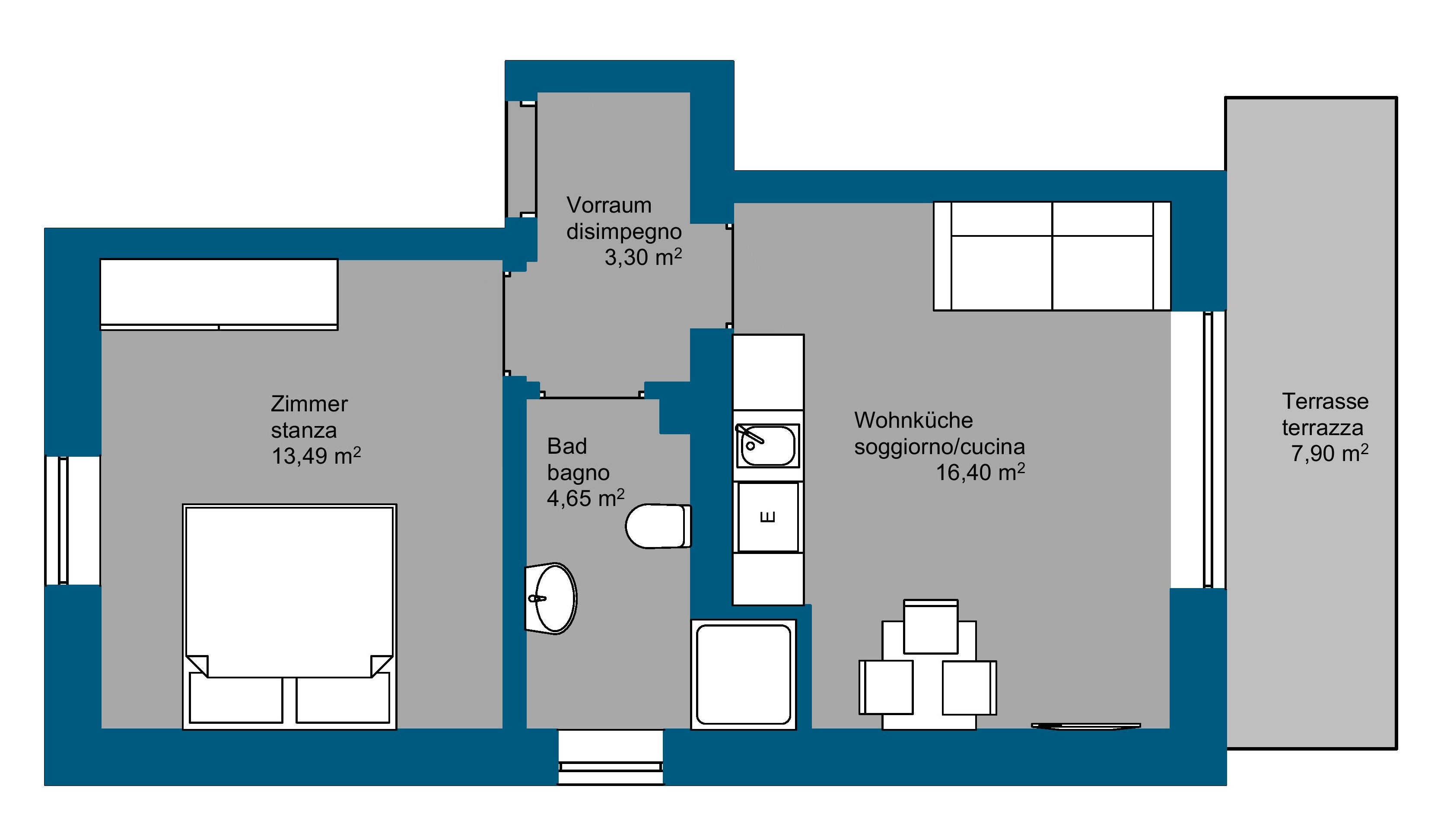
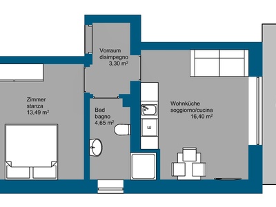
Sanierte 2-Zimmer Wohnung mit großem Balkon
R06897BX2Z - Zum Verkauf stehen zwei sonnige und frisch sanierte 2-Zimmer-Wohnungen, die sich beide in der zweiten Etage eines kleinen Wohnhauses mit insgesamt nur fünf Einheiten befinden. Jede der Wohnungen wurde vollständig renoviert und präsentiert sich im Erstbezug, wodurch sie sofort bezugsfertig und in einem neuwertigen Zustand sind. Dank der Westausrichtung genießen die Räume viel Tageslicht sowie herrliche Sonnenuntergänge, die sich besonders gut vom großzügigen Balkon aus erleben lassen – ein idealer Platz für entspannte Stunden im Freien.
Die Lage überzeugt ebenso: Nur wenige Schritte von der Altstadt entfernt, befinden sich sämtliche Dienstleistungen, Cafés, Geschäfte und öffentliche Verkehrsmittel in bequemster Reichweite. Gleichzeitig liegt das Haus angenehm ruhig, sodass ein ausgewogener Mix aus urbaner Nähe und Wohnkomfort entsteht.
Da die Wohnungen nicht konventioniert sind, eignen sie sich ideal sowohl als Hauptwohnsitz als auch als Ferienwohnung oder Investition für die Kurz- und Langzeitvermietung. Ein Stellplatz kann für jeweils 20.000 € zusätzlich erworben werden, was den Komfort besonders erhöht.
Diese beiden modernen Apartments verbinden hochwertige Sanierung, sonnige Ausrichtung und eine begehrte Lage – eine attraktive Gelegenheit für Eigennutzer wie auch für Investoren.
| 2 Zimmer Wohnung | 330.000 € | 37 m² |
| Eisacktal/Wipptal | Brixen | 2.Stock |
| Anzahl Schlafzimmer: 1 | Anzahl Bäder: 1 | Küche: Kochecke |
| Balkon: Nein | Terrasse: Ja | Garten: Nein |
| Aufzug: Nein | Keller: / | Garage/Stellplatz: Stellplatz extra |
| Zustand: Saniert | Einrichtung: nicht möbliert | Heizung: zentral |
| Energ. Zertifizierung: A | Verfügbarkeit: Frühjahr 2026 |
| 2 Zimmer Wohnung | 330.000 € |
| Eisacktal/Wipptal | Brixen |
| 37 m² | 2.Stock |
| Anzahl Schlafzimmer: 1 | Anzahl Bäder: 1 |
| Balkon: Nein | Terrasse: Ja |
| Garten: Nein | Küche: Kochecke |
| Keller: / | Garage/Stellplatz: Stellplatz extra |
| Zustand: Saniert | Einrichtung: nicht möbliert |
| Aufzug: Nein | Heizung: zentral |
| Energ. Zertifizierung: A | Konventioniert: nein |
| Verfügbarkeit: Frühjahr 2026 |
Rimmo Real Estate
Innsbrucker Straße 29 - 39100 Bozen
tel +39 0471 982 844 - info@rimmo.it - MwSt. Nr. 02980260216
Toskana
tel +39 333 993 5635 - tuscany@rimmo.it - MwSt. Nr. 03240880215