Anfrage
Besichtigungstermin
2 Zimmer Wohnung - Meran-Untermais
Neuwertige 2-Zimmer Wohnung mit freiem Ausblick
R06988ME2Z - Diese neuwertige 2-Zimmer Wohnung überzeugt durch ihre moderne Bauweise, ihre hochwertige Ausstattung und einen atemberaubenden Ausblick in die umliegende Natur. Das im Jahr 2024 errichtete Neubauprojekt entspricht dem KlimaHaus-Standard A und garantiert somit höchste Energieeffizienz, niedrige Betriebskosten sowie ein nachhaltiges Wohnkonzept.
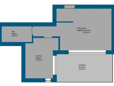
Die Wohnung ist nach Süd-Osten ausgerichtet und präsentiert sich besonders hell und sonnig. Große Fensterflächen eröffnen eine freie, unverbaubare Aussicht über weitläufige Obstwiesen und schaffen eine angenehme Verbindung zwischen Innen- und Außenraum. Ein besonderes Highlight ist die großzügige, überdachte Terrasse, die ausreichend Platz zum Sonnen, Entspannen und Verweilen bietet und zu jeder Tageszeit genutzt werden kann.
Die durchdachte Raumaufteilung sorgt für ein komfortables Wohngefühl und macht die Immobilie sowohl für Eigennutzer als auch für Paare besonders attraktiv. Ein Kellerraum sowie eine Garage sind im Angebot inbegriffen und bieten zusätzlichen Komfort und Stauraum. Die Wohnung ist konventioniert und ist somit ausschließlich für berechtigte Käufer vorgesehen.
Insgesamt handelt es sich um eine hochwertige, moderne Immobilie in ruhiger Lage mit einzigartigem Ausblick, die zeitgemäßes Wohnen mit Naturverbundenheit ideal verbindet.
| 2 Zimmer Wohnung | 379.000 € | 70 m² |
| Burggrafenamt/Etschtal | Meran-Untermais | 2.Stock |
| Anzahl Schlafzimmer: 1 | Anzahl Bäder: 1 | Küche: Kochecke |
| Balkon: Nein | Terrasse: Ja | Garten: Nein |
| Aufzug: Ja | Keller: 1 | Garage/Stellplatz: Garage inklusive |
| Zustand: Neuwertig | Einrichtung: teilweise möbliert | Heizung: zentral |
| Energ. Zertifizierung: A | Verfügbarkeit: sofort |
| 2 Zimmer Wohnung | 379.000 € |
| Burggrafenamt/Etschtal | Meran-Untermais |
| 70 m² | 2.Stock |
| Anzahl Schlafzimmer: 1 | Anzahl Bäder: 1 |
| Balkon: Nein | Terrasse: Ja |
| Garten: Nein | Küche: Kochecke |
| Keller: 1 | Garage/Stellplatz: Garage inklusive |
| Zustand: Neuwertig | Einrichtung: teilweise möbliert |
| Aufzug: Ja | Heizung: zentral |
| Energ. Zertifizierung: A | Konventioniert: ja |
| Verfügbarkeit: sofort |
Rimmo Real Estate
Innsbrucker Straße 29 - 39100 Bozen
tel +39 0471 982 844 - info@rimmo.it - MwSt. Nr. 02980260216
Toskana
tel +39 333 993 5635 - tuscany@rimmo.it - MwSt. Nr. 03240880215