Anfrage
Besichtigungstermin
3 Zimmer Wohnung - Desenzano del Garda
Moderne 3-Zimmer Wohnung mit Garten
R06958DE3Z - Im Herzen von Desenzano del Garda, direkt am Seeufer, entsteht ein einzigartiges Wohnensemble, das Eleganz, Moderne und eine der begehrtesten Lagen am Gardasee vereint. Das Projekt umfasst die komplette Neugestaltung einer historischen Villa, in der 19 erstklassige Wohnungen entstehen, sowie die Errichtung eines modernen Wohnkomplexes mit weiteren 16 hochwertigen Einheiten. Beide Gebäude fügen sich harmonisch in die Umgebung ein und bieten ein exklusives Wohnambiente für höchste Ansprüche.
Die direkte Seelage ist ein außergewöhnlicher Vorteil: Von hier erreicht man die malerische Altstadt, Restaurants, Boutiquen und Sehenswürdigkeiten von Desenzano bequem zu Fuß – eine perfekte Balance zwischen Ruhe, Privatsphäre und urbaner Lebensqualität. Die besondere Position am Wasser verleiht diesem Wohnensemble einen unvergleichlichen Wert und macht es zu einer seltenen Gelegenheit auf dem Immobilienmarkt.
Die zukünftigen Wohnungen überzeugen durch großzügige Grundrisse, hochwertige Materialien und ein Design, das Licht und Raum optimal zur Geltung bringt. Große Terrassen und Balkone schenken zusätzlichen Lebensraum im Freien und bieten wunderbare Ausblicke. Ein sorgfältig angelegter Gemeinschaftsgarten schafft eine grüne Oase, ideal zum Entspannen.
Großen Wert legt das Projekt auf Nachhaltigkeit und technischen Komfort. Moderne Hausautomationssysteme sorgen für maximale Kontrolle und Wohlbefinden, während die gesamte Anlage energetisch effizient geplant wurde.
Ein weiteres Highlight bildet der exklusive Gemeinschaftspool mit Panorama-Seeblick, der mit einem innovativen Ozon-Reinigungssystem betrieben wird – eine besonders sanfte und umweltfreundliche Lösung.
Jede Wohneinheit wird mit einer privaten Garage inklusive Ladestation für Elektrofahrzeuge sowie einem Kellerraum verkauft und bietet damit höchsten Komfort und optimale Funktionalität.
Dieses Wohnensemble vereint Luxus, Natur und stilvolle Architektur an einem der schönsten Orte des Gardasees – eine einmalige Gelegenheit für alle, die das Besondere suchen.
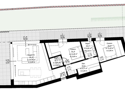
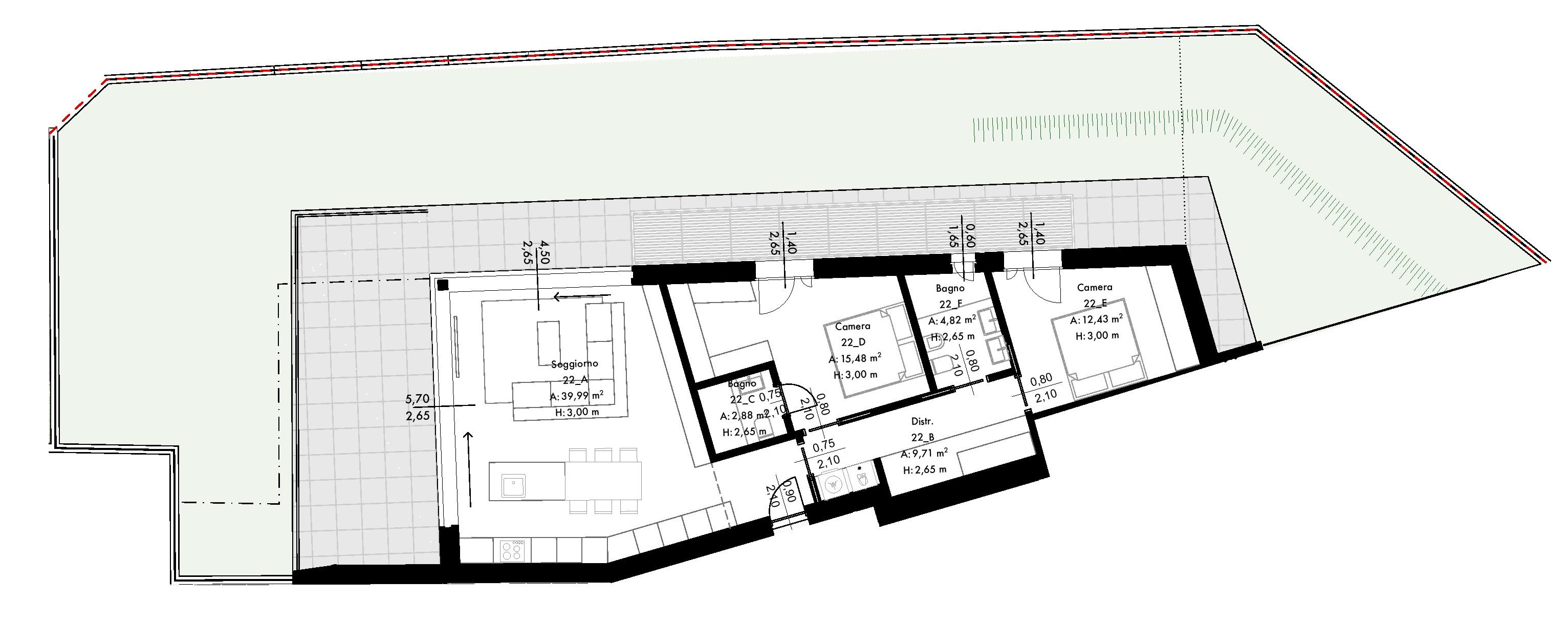
| 3 Zimmer Wohnung | 1.350.000 € | 163 m² |
| Gardasee West | Desenzano del Garda | Erdgeschoss |
| Anzahl Schlafzimmer: 2 | Anzahl Bäder: 2 | Küche: Kochecke |
| Balkon: Nein | Terrasse: Ja | Garten: Ja |
| Aufzug: Ja | Keller: 1 | Garage/Stellplatz: Garage inklusive |
| Zustand: Neubau | Einrichtung: nicht möbliert | Heizung: zentral |
| Energ. Zertifizierung: A | Seeblick: ja | Verfügbarkeit: Ende 2026 |
| 3 Zimmer Wohnung | 1.350.000 € |
| Gardasee West | Desenzano del Garda |
| 163 m² | Erdgeschoss |
| Anzahl Schlafzimmer: 2 | Anzahl Bäder: 2 |
| Balkon: Nein | Terrasse: Ja |
| Garten: Ja | Küche: Kochecke |
| Keller: 1 | Garage/Stellplatz: Garage inklusive |
| Zustand: Neubau | Einrichtung: nicht möbliert |
| Aufzug: Ja | Heizung: zentral |
| Energ. Zertifizierung: A | Seeblick: ja |
| Verfügbarkeit: Ende 2026 |
Rimmo Real Estate
Innsbrucker Straße 29 - 39100 Bozen
tel +39 0471 982 844 - info@rimmo.it - MwSt. Nr. 02980260216
Toskana
tel +39 333 993 5635 - tuscany@rimmo.it - MwSt. Nr. 03240880215