Request
Fix an appointment
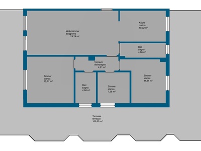
Four Room Apartment - Jesolo
Attractive apartment with large terrace
R06727JE4Z - This elegant apartment is located in the center of Jesolo, just a few steps from Piazza Aurora. Thanks to its proximity to shops, restaurants, and bars, it offers an ideal combination of urban convenience and beach proximity—perfect for those who want to enjoy the vibrant life of Jesolo without sacrificing peace and privacy.
A special highlight is the spacious wraparound terrace, which completely surrounds the apartment and offers plenty of space to relax and enjoy yourself. Here you can spend cozy summer evenings with friends or quiet hours in the sun – with a beautiful view of the sea, which is only 50 meters away.
The apartment is located on the second floor of a well-maintained building and impresses with its bright, open-plan living area, which is generously proportioned and leads directly onto the terrace. The two bathrooms offer a high level of comfort, while the bedrooms impress with their pleasant size.
A garage parking space is included in the price – a real advantage in this central location. In addition, the residential complex has an agreement that guarantees owners their own deck chair on the beach.
This property is the perfect vacation home or investment in Jesolo, harmoniously combining sea views, location, and quality of life – a place where you immediately feel at home and can enjoy the scent of the sea every day.
| Four Room Apartment | 790.000 € | 212 m² |
| Adria | Jesolo | 2nd floor |
| Bedrooms: 3 | Bathrooms: 2 | Kitchen: Kitchen nook |
| Balcony: No | Terrace: Yes | Garden: No |
| Elevator: No | Cellar: / | Garage: parking spot in garage included |
| Condition: Good | Furniture: furnished | Heating: indipendent |
| Energy Certificate: G | Availability: immediately |
| Four Room Apartment | 790.000 € |
| Adria | Jesolo |
| 212 m² | 2nd floor |
| Bedrooms: 3 | Bathrooms: 2 |
| Balcony: No | Terrace: Yes |
| Garden: No | Kitchen: Kitchen nook |
| Cellar: / | Garage: parking spot in garage included |
| Condition: Good | Furniture: furnished |
| Elevator: No | Heating: indipendent |
| Energy Certificate: G | |
| Availability: immediately |
Rimmo Real Estate
Via Innsbruck 29 - 39100 Bolzano
tel +39 0471 982 844 - info@rimmo.it - VAT ID 02980260216
Tuscany
tuscany@rimmo.it - VAT ID 03240880215